Всё, что здесь представлено — является эксклюзивной в своём роде информацией, поэтому просьба, оставляйте ссылки на первоисточник, если публикуете эти материалы на сторонних ресурсах (кроме Драйв 2)
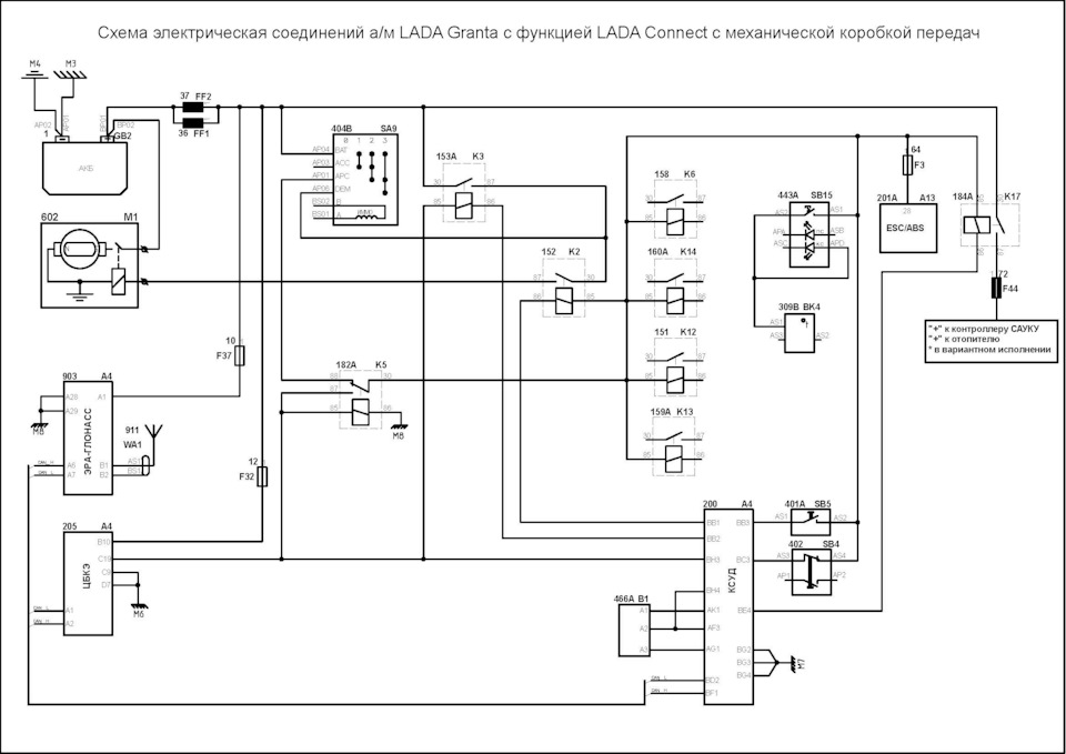
Предыстория. Итак, электросхем на Гранту FL нигде в публичном доступе не было. Нет, я пытался воссоздать по крупицам методом аналогии с Калиной 2 и т.п. Но данный подход не столь продуктивен. И тут подвернулся случай, Babulynvnuk решил сделать из своей Гранты FL 2019 года в комплектации Комфорт Гранту в комплектации люкс престиж. Жгут панели был куплен от Калины 2 2017 года (он, в свою очередь, не стыкуется с жгутами задним и передним от Гранты FL), а также задний и передний от FL в комплектации люкс престиж. Путём нехитрых манипуляций была выяснена точная распиновка межжгутовых разъёмов, а также цвета проводов и отрисованы схемы с нуля. Выкладываю на всеобщее обозрение. Такого не найдёте больше нигде

На Калине 2 габариты идут из жгута панели в жгут задний, а затем из заднего в передний, а на Гранте FL наоборот, из жгута панели в передний, из переднего в задний. Добавились провода под LADA Connect, парктроник (в приборке), второй контур ручника, задний ход теперь идёт через жгут панели, а не из переднего


С 2019 года есть изменения, добавилось 3 провода. Масса плафона теперь идёт от блока Эра-Глонасс

Габариты теперь идут на пинах Калины 1. Сигнал тревожной сигнализации объединили с клаксоном. Лягуху ЗХ переместили.

Силовое питание унифицировали. Провода одинакового цвета равнозначны

Рокировка габаритов
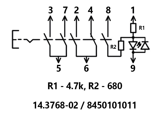
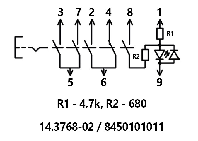
Теперь немного про Эра-Глонасс. С 2019 года ставят новый плафон 8450105364 и новый блок Эра-Глонасс 8450101149. Добавили активную систему помехоподавления микрофона в плафоне. Теперь там стоит контроллер. У плафона есть даже версия ПО. Изменили и проводку, масса плафона идёт через блок Эра-Глонасс. Т.е. сперва масса приходит на блок Эра-Глонасс, а затем с него уходит уже в плафон.
Вот тот самый умный плафон



Распиновочки












Лайк, подписка репост, я старался, короче…
P.S. распиновок на Гранту в комплектации Комфорт не знаю. Пока…
Всем удачи, бобра и понятной автоэлектрики!


Комментарии 153
Я вот что нашёл для датсуна на д2. Для гранты тоже подходит
Это всё есть
Mortser
Я вот что нашёл для датсуна на д2. Для гранты тоже подходит
Ничего не видно
Здравствуйте! Помогите определится с неисправностью, гранта фл 2021г.в. комплектации комфорт. Не работает центр.замок и дверь багажника, обогрев сидений, обогрев заднего стекла и боковых зеркал. Началось с дребезга реле за блоком предохранителей. Нашел там блок ЦБКЭ 8450101126. Не могли бы вы поделится схемой центр.замка и ЦБКЭ, если есть.Рсапиновку ЦБКЭ и схему обогрев. сидений уже изучил. За это огромное спасибо!
Может несколько предохранителей сгорели и надо устранить причину перегорания и заменить их. На ниву устанавливал антенну и провод через жгут вод. двери протянул и провод антенны через год порвался и почти всю оборвал проводку левой двери и не работал подогрев зеркал и стеклоподъёмник и выгорело много предохранителей. Ещё под капотом есть предохранители макси, может и там проблема
lunja1990
Здравствуйте! Помогите определится с неисправностью, гранта фл 2021г.в. комплектации комфорт. Не работает центр.замок и дверь багажника, обогрев сидений, обогрев заднего стекла и боковых зеркал. Началось с дребезга реле за блоком предохранителей. Нашел там блок ЦБКЭ 8450101126. Не могли бы вы поделится схемой центр.замка и ЦБКЭ, если есть.Рсапиновку ЦБКЭ и схему обогрев. сидений уже изучил. За это огромное спасибо!
Здравствуйте. Решили пробелему?
Да, я это понял, можно ли сделать какие-то чтоб как с завода? Или лучше купить автооко24?
На данный момент технической возможности поставить заводскую систему нет
А можно ли установить LADA Connect из установочного комплекта который продается как аксессуар, только чтоб работало как с завода с всем функционал и с датчиком нейтрали? 2019 год, FLка, комплектация Luxe Prestige, блок M74CAN.
В коробке совсем не то, что с завода
Добрый день, мастера помогите с проблемой, новая лада гранта фл 2023 г. Замучился идет утечка тока 0.18 А аккумулятор может высадить за 5 — 6 дней простоя, нашел предохранитель ф-23 который идет на приборную панель и деогнастический разъем его выдергиваеш и все утечка пропадает, также пробовал и другие выдергивать без результата вот только он, и реле все по очереди выдергивал без результата. Что делать помогите ! Перепробовал все что нашел в инете, и багажник, генератор и многое другое, как только выдергиваеш предохранитель все норм сразу, и да ждал даже года удет всон изменений не каких.
Здравствуйте, у нас гранта пикап, похожая ситуация с предом F17, утечка 0.29а, несколько дней аккум садиться, предохранитель 5а вытащил, не работают ЭСП, хочу их переделать после замка зажигания
Помогите найти +12В в разъеме плафона освещения салона) Гранта ФЛ 2023 весна, без АБС и электро-замков. Один концевик двери, если это важно.
Нашел +12В (12В на 5В), подключил регистратор, теперь на панели прибора "горит" пиктограмма открытой двери( Экран регистратора мигает (похоже на ШИМ). Других +12В не найду или не туда смотрю. Помогите плиз)
11
Режим энергосбережения? Никогда бы не додумался. Там +12В постоянно? Спасибо.
При ззажигании + 10 минут после активности
То, что нужно. Спасибо.
Чел, а не подскажешь можно ли имобилайзер включить в 8450111463.
АвтоВАЗ замечательная компания. Вместо того чтобы сделать выштамповку на плачтике где какой предохранитель просто в кучу в руководстве по эксплуатации прописали номиналы предов и за что отвечают и любимое в вариантном исполнении, это что за лять? У меня блок предов не сходится с их писаниной. На ф37 стоит по книжке 25а блок Ока саурона а у меня на 5а и нигде больше 20а нет предов. Во приколы.
Тогда надо 20 выштамповок делать. Это не выгодно. Там всё на самом деле сходится. В который раз убеждаюсь. Значит не того года руководство смотрите.
Какое было с машиной то и смотрю. На иномарках указывают предохранители на крышках и всё норм. А у АвтоВАЗа одно удешевление а для покупателей сплошное подорожание этого говнища. Я бы так не писал если бы новая тачка не ебала мозги с утечкой тока в 20-30 мА за неделю акум в ноль. Один уже выкинул такими темпами и второй на помойку уйдет. Думал на сигу. Вырубил ничего не поменялось. Первые сутки показания тормознулись 12.57 вольт на вторые уже 12.1 стало после поездки. Куда копать хз. Думаю выдернуть проводку4с глонасса но не уверен что поможет
Всего не укажешь на крышке. Один предохранитель отвечает сразу за несколько потребителей. Как это отразить на крышке? Фантазии не хватит. На Аркане есть табличка на крышке. Что толку? Сидишь, гадаешь, в схему смотришь, т.к., оказывается, потребитель не один, а несколько…
укажешь. есть практика указания основного потребителя и его классически принятой обвязки. так было, есть и делается на иномарках, не считая китая и снгшных сборок хлама.
Ну спорить не буду. Парктроник, Эра-Глонасс и приборка. Все сидят на одном преде на FL. Что из этого основной потребитель? И какую пиктограмму рисовать на крышке?
Kpaft
Какое было с машиной то и смотрю. На иномарках указывают предохранители на крышках и всё норм. А у АвтоВАЗа одно удешевление а для покупателей сплошное подорожание этого говнища. Я бы так не писал если бы новая тачка не ебала мозги с утечкой тока в 20-30 мА за неделю акум в ноль. Один уже выкинул такими темпами и второй на помойку уйдет. Думал на сигу. Вырубил ничего не поменялось. Первые сутки показания тормознулись 12.57 вольт на вторые уже 12.1 стало после поездки. Куда копать хз. Думаю выдернуть проводку4с глонасса но не уверен что поможет
Что за машина, год выпуска?
Фото блока предов есть?
Найду Вам точную схему расположения
Гранта фл 24 год. По руководству не совпадает пара предохранителей по номиналу.
Turbomotor-412
Тогда надо 20 выштамповок делать. Это не выгодно. Там всё на самом деле сходится. В который раз убеждаюсь. Значит не того года руководство смотрите.
на калине было выгодно видимо. на 2110-15 тоже. начиная с приоры и дальше пошел треш. разные блоки, разные ревизии и полный хаос в исполнении и назначении. благо пока французы были, был порядок и качество. сейчас новая веста, гранта или ларгус это такое фуфло. 400км и эбу на помойку, погоревшие клапана, провернутые вкладыши, потекшая помпа и это только малая часть того треша что мне встречается на абсолютно новых авто.
С французов вариации и начались
Добрый день ! Огромное человеческое спасибо вам за труд ! С Вашего разрешения я добавлю ваши работы к базе электросхем t.me/u_avto
Сылку я добавил под каждую схему ! Если Ввм нужно еще что либо добавить — пишите !
Какой смысл спрашивать разрешения задним числом?
Не мог в акк войти, если против — удалю сегодня
Не против 😉
Спасибо !)
Turbomotor-412
Какой смысл спрашивать разрешения задним числом?
Не так просто их добавлять, все время уходит на это
Время уходит рисовать и разбираться во всем этом
Это точно !
Добрый день! Подскажите куда копать.
Когда нажата кнопка открытие двери на плафоне освещения, при нажатии педали тормоз пропадает с приборки сигнал открытой двери (дверь открыта концевики двери работают). Когда плафон отключён при открытой двери индикация на панели приборов не пропадает. Стоит сигнализация Старлайн А96, подключенная по CAN.
Гранта лифтбек 24 года комплектация Клуб.
Похоже на плохо работающий концевик. Ток через себя не держит
Концевик педали тормоза я понимаю?
Двери. Но связь с педалью уловить сложно
Вот и я в замешательстве. Копну в сторону установщик сигнализации, видимо где-то намудрили. Спасибо за ответ.
Где то установщик напартачил подключая концевик тормоза и двери к сигнализации.
Доброго времени суток. Новая Гранта Кросс комфорт 24г. Несколько раз была такая ситуация: поворачиваешь ключ в положение стартер и тишина. Панель горит, пока не вычислил работает ли бензонасос при этом. Всегда происходило на горячую. Отпускаешь ключ в положение зажигания и он повторно не поворачивается в положение стартер. Как будто упирается. (Может это и не имеет отношение, просто факт) Тогда выключаешь зажигание и со второго раза всегда машина заводится. Официалы разводят руками, дескать, когда приедете на эвакуаторе, тогда будем искать. Силовые провода протягивал. После работы стартера нигде на силовых проводах локального нагрева не обнаружил, ну и втягивающего не слышно. Вот здесь есть алгоритм поиска для первой гранты. autoruk.ru/lada-granta/pr…niya-startera-lada-granta На кроссе 24г даже реле иначе расположены и называются иначе. Не подскажите, куда копать или чего ждать? Ну а наличие схемы цепочки включения стартера для новой Гранты — это был бы большой подарок! Спасибо!
8 кл гранты запускаются с выжатым сцеплением. Это алгоритм ЭБУ такой. Если запуска не происходит, проверьте концевик педали сцепления.
Расположение предов и реле точно такое же, изменения минимальны, точная таблица есть у Вас в руководстве по эксплуатации.
Запускается без сцепления всегда. Расположение предов и реле иное. Все равно спасибо!
Расположение точно такое же как и на любых FL после 2019 года, разница лишь в том, что вместо одного реле обьогрева лобового стекла на 70 А теперь ставят два по 40, колодок импортных нет. А так я даже полностью перематывая жгуты на FL 2023 года.
Реле стартера К2, управляется пином В1 малого разъёма ЭБУ
Понял, спасибо! А где взять схему после19г?
lada-granta.ru/pdf/2024/lada_granta_09_02_2024.pdf
Стр. 131
Спасибо!
Turbomotor-412
Расположение точно такое же как и на любых FL после 2019 года, разница лишь в том, что вместо одного реле обьогрева лобового стекла на 70 А теперь ставят два по 40, колодок импортных нет. А так я даже полностью перематывая жгуты на FL 2023 года.
Реле стартера К2, управляется пином В1 малого разъёма ЭБУ
Добрый день! Не подскажете как на гранте кросс 24 г.в. комплектации квест реализован обогрев лобового стекла? Через какой блок управляется сам обогрев…
За обогрев отвечают реле К14 и К15, те, что на навесные колонках. Слева снизу. Управляет ими мебельной блок управления обогревом 1118-3763050
Понял, спасибо!
А есть разница с реле 2170-3763050?
Turbomotor-412
За обогрев отвечают реле К14 и К15, те, что на навесные колонках. Слева снизу. Управляет ими мебельной блок управления обогревом 1118-3763050
Нет случайно заводской схемы подключения этого реле? Хочу по заводу сделать…
а у вас нет принципиальной схемы щитка приборов. буду благодарен…
Она есть только у Итэлмы
нее, он меня не знает, не даст. а не знаете в бензонасосе гранта есть отдельный датчик минимального уровня топлива. или компьютер берёт информацию( для зажигания лампочки) из "тока" поплавка? спасибо…
Чаво?
Без зажигания — при нажатии на блокировку водительской двери, все двери блокируются.
С включенным зажиганием — машина шлёт нахрен, только меня…(Закрывается только водительская дверь, остальные остаются открытыми)
у меня такая же штука гранта кросс 24г.
Шумка
Anatoliy35
Без зажигания — при нажатии на блокировку водительской двери, все двери блокируются.
С включенным зажиганием — машина шлёт нахрен, только меня…(Закрывается только водительская дверь, остальные остаются открытыми)
Такая же е******. Послесанкйионные гранты все е****** на китайских комплектующих
Anatoliy35
Без зажигания — при нажатии на блокировку водительской двери, все двери блокируются.
С включенным зажиганием — машина шлёт нахрен, только меня…(Закрывается только водительская дверь, остальные остаются открытыми)
У всех так. Защита от дурака называется, что бы ваша машина не заперлась заведенной.
Впервые вижу данный сборник схем. Очень познавательно( на будущее, свою "чайку" поколдовать надо, чтоб гарантия слетела?!) огромное за это спасибо, точно пригодится.
По возможности если сможете ответить:
Имеется гранта фл лифтбек 24г. Поставили оффики сигнализацию Шерхан, вроде без вопросов, работает. Нооооо.
Столкнулся с проблемой, что логика работы закрытия и открытия, очень странная.
После поставки на автозапуск, открываешь дверь( зад, перед, багажник) закрываешь, ставишь на сигнал, а закрывается только водительская дверь… Ужас блин.
При начале движения(после разбора с шерханом, в приложении мобикар 2, настроил запирание цз при снятии с ручника) закрывается таки только дверь, "прокладки", между рулём и сиденьем.
Оффики сказали ( буквально щас от них приехал, засранцев), что это "особенность" идёт с завода, мы ничего поделать не можем, дайте денег, чё нибудь сделаем, но не факт…
Не могу понять где начать рыть, в блоке комфорта ковыряться или же с "НеДо" ЦЗ разбираться? Что можете сказать ?
( P.s. вы меня можете послать, но я могу не пойти 😁)
Спасибо!
Конечно не видели это сборник, я его рисовал с нуля.
А по работе цз на включенном зажигании — особенность, алгоритма всё правильно сказали
А вы сами уже пробовали, с минимальными трудозатратами, эту "особенность" обходить?
Есть вообще смысл в этом разбираться?
Или как остальные, резать провод(вроде жёлтый, под панелью на разъеме) и ставить меперымчку на реле?
Комплектация какая, ЦБКЭ стоит или блок цз?
А вот это я и забыл написать.
Комплектация: Comfort'23(21914-5DA-B1)
В карте комплектации указано просто : "Центральный замок"
5 контактное реле в разрыв зажигания на блок цз. И цеплять управление к проводу АСС сигналки
Правильно понял?
Нет, у блока автозапуска сигналок современных есть выход Асс, к нему цепляем только управление этим реле. Реле должно разрывать провод зажигания блока цз
Anatoliy35
Впервые вижу данный сборник схем. Очень познавательно( на будущее, свою "чайку" поколдовать надо, чтоб гарантия слетела?!) огромное за это спасибо, точно пригодится.
По возможности если сможете ответить:
Имеется гранта фл лифтбек 24г. Поставили оффики сигнализацию Шерхан, вроде без вопросов, работает. Нооооо.
Столкнулся с проблемой, что логика работы закрытия и открытия, очень странная.
После поставки на автозапуск, открываешь дверь( зад, перед, багажник) закрываешь, ставишь на сигнал, а закрывается только водительская дверь… Ужас блин.
При начале движения(после разбора с шерханом, в приложении мобикар 2, настроил запирание цз при снятии с ручника) закрывается таки только дверь, "прокладки", между рулём и сиденьем.
Оффики сказали ( буквально щас от них приехал, засранцев), что это "особенность" идёт с завода, мы ничего поделать не можем, дайте денег, чё нибудь сделаем, но не факт…
Не могу понять где начать рыть, в блоке комфорта ковыряться или же с "НеДо" ЦЗ разбираться? Что можете сказать ?
( P.s. вы меня можете послать, но я могу не пойти 😁)
Спасибо!
Если без сигнализации — закрываешь ключем водительскую дверь. Остальные двери блокируются?
Может тупо замки не подключены. Сейчас эти дол.оящеры не ставят актуаторы/привода в двери. Тупо кинули провод на замок водительской двери. А у тебя простые замки. Или нет проводки для замков. С новыми технологиями автоатаса всё может быть…
Сигналку официалы ставят по технологическим картам. Там написано, что прокинуть провод в водительскую дверь. А уже концевик в замке водит. двери даёт сигнал блоку электроники на закрытие остальных. Но эти карты не знают, что машины могут быть без электрозамков, блоков электроники. Да хоть без подушек и АБС…
У меня вначале закрывается водит. дверь. А через секунду остальные.
Чтоб поставить кламат на гранту фл комфорт 23 с абс, надо проводку от люкса покупать?
Надо скрещивать две проводки. Люксовая не встанет. Либо встанет с заменой всей проводки и блоков, а это дорого
Вы не знаете, с какой проводкой ее нажо срастить? Спасибо.
С любой с климатом
Салонную надо покупать?
Не
Полность с люкса или с кросса с климатом надо покупать?
Можно хоть от Датсуна. Надо с нее взять только ту часть, что за Климат отвечает
Ikonnikov22
Полность с люкса или с кросса с климатом надо покупать?
Можно хоть от Датсуна. Надо с нее взять только ту часть, что за Климат отвечает
Ikonnikov22
Вы не знаете, с какой проводкой ее нажо срастить? Спасибо.
Как донор использовать
Turbomotor-412
Надо скрещивать две проводки. Люксовая не встанет. Либо встанет с заменой всей проводки и блоков, а это дорого
И эбу у меня м 74.9
Не важно
…Распиновка разъёма жгута заднего к жгуту переднему Гранта FL МКПП, АКПП. Синий разъём (33 контакта)…
А на схеме только 30 контакта. Указана и вторая схема с 33 контактами в описании и на схеме. Какая разница? Как 33 контакта умещаются в колодку 30 контактов?
Колодка на 33 контакта. Здесь цветная маркировка проводов в двух разных жгутах.
Спасибо.
Про дад стоковый. Датчик давления, температуры и масса. Еще питание +5 получается. Можно же отключить дтв и перенести. чтобы отдельно стоял. Например, этот 0280130039. То есть желтый C2 перенести а +5в получается просто пустить паралельно с дад?
5 В — это чисто питание ДАД. Провод сигнала ДТВ имеет внутренний подтягивающий резистор. А ЭБУ меряет с помощью АЦП падение напряжения на нем. Там нужна только масса и провод ДТВ. Питалово не нужно отдельное. Перенести можно, но нужно ли, в ЭБУ есть тарировка ДТВ под каждый из датчиков. Надо будет настраивать. А так можно хоть встроенный в ДМРВ ДТВ подключить.
Ну у меня дад стоит в горячем месте. Чет посоветовали перенести дтв ближе к фильтру
Turbomotor-412
5 В — это чисто питание ДАД. Провод сигнала ДТВ имеет внутренний подтягивающий резистор. А ЭБУ меряет с помощью АЦП падение напряжения на нем. Там нужна только масса и провод ДТВ. Питалово не нужно отдельное. Перенести можно, но нужно ли, в ЭБУ есть тарировка ДТВ под каждый из датчиков. Надо будет настраивать. А так можно хоть встроенный в ДМРВ ДТВ подключить.
Так и поступим. Просто от дмрв тогда возьму дтв. )) спасибо
Проще будет, с него тарировку списать тогда и всё. Датчик штатный, самое главное.
Turbomotor-412
5 В — это чисто питание ДАД. Провод сигнала ДТВ имеет внутренний подтягивающий резистор. А ЭБУ меряет с помощью АЦП падение напряжения на нем. Там нужна только масса и провод ДТВ. Питалово не нужно отдельное. Перенести можно, но нужно ли, в ЭБУ есть тарировка ДТВ под каждый из датчиков. Надо будет настраивать. А так можно хоть встроенный в ДМРВ ДТВ подключить.
Да, там просто настройщик сказал что горячее место и дад дтв показывает фигню
Приветствую! А где-то реально найти альбом электросхем на гранту фл?
Ну у меня есть
Могли бы поделиться? нужна распиновка кнопки аварийки
Спасибо!
Здравствуйте, хотел спросить, у меня гранта 18года до рест комфорт, нету глонасса, но в проводке рядом с приборкой есть штекер для глонасса, если купить плафон и блок, антенна у меня есть, то можно его реализовать?
да
Скажите еще одно, я нашел блок снятый с новой гранты без пробега, его можно установить?
На сколько мне известно каждый блок регистрируется на определённую машину. Нельзя как допустим в с блоком цз просто снять с одной и поставить на другую.
Здравствуйте. Схему выхода с улитки можете нарисовать? Куда идут 4-ре провода
какой улитки?
Значит так. Поставил обогрев на руль. В ютубе чувак описывает сей девайс. Но в конце не понятно. Куда лезть дальше по подключению. Коричнево-белый и черный были на сигнале. Вот куда они выходят после руля. Схемы не найду .
Вокруг одни экстрасенсы с ТНТ собрались, ну серьёзно. Что за машина, какой чувак, какой девайс…
Гранта люкс 21г. В руле корич.бел и черн. идут на сигнал. Ну и разъём на ПБ.
Черный — масса, коричнево-белый — на реле сигнала.
Зеленый и зелено-белый — к блоку управления подушками безопасности (их трогать вообще нельзя)
А схемки нет у вас?
автоэксперт.рус/download/…sclid=lr21tcpeb5896190553
Спасибо вам огромное 👍
В очередной раз полюбопытствовал вашими трудами по схемам, и в который раз скажу СПАСИБО за такой колоссальный труд! Ну и как всегда почерпнул что то новое!
Есть датчик нейтрали в жгуте системы зажигания
Как на лада коннект на гранте нейтраль реализована?
Есть датчик нейтрали или там как на обычных сигнализациях логическая нейтраль.
Вот он, красавец
Babulynvnuk
Как на лада коннект на гранте нейтраль реализована?
Есть датчик нейтрали или там как на обычных сигнализациях логическая нейтраль.
На коробке. Кронштейнов в продаже нет. Самому мастерить. А сами датчики вроде были
А сигнал в кан шине?
Сигнал датчика напрямую в ЭБУ (466А). В жгуте панели у тебя вся проводка под него есть. Нет только в моторном
Понял спасибо
Turbomotor-412
На коробке. Кронштейнов в продаже нет. Самому мастерить. А сами датчики вроде были
Вы можете запилить отдельный видос или статью про этот датчик? Я реализовал датчик нейтрали с помощью герконов, оказывается есть заводское решение.
Весьма редкая и очень полезная информация, респект!
Нет ли ни у кого распиновки контроллера ЭБУ 8450104480? Это Гранта 2019 года с роботом. В частности интересует выход сигнала на тахометр
Есть у меня в блоге всё. Распиновка та же, что и с М74 CAN
sunduchina
Нет ли ни у кого распиновки контроллера ЭБУ 8450104480? Это Гранта 2019 года с роботом. В частности интересует выход сигнала на тахометр
4 части с распиновками
Мне вот всё интересно как реализован парктроник на престижах. Получается писк идёт из самой панели а не как раньше из задних колонок?
Да, к панели подключаются парктроники. Сигнал идёт по LIN-шине. Плюс от приборки питание, а также сигнал отключения парктроника
К какому разъему подключается парктроник на приборке?
К жёлтому 26-контактному
Как думаешь можно ли к нему подключить не штатные парктроники?
Нет
LexBor
Мне вот всё интересно как реализован парктроник на престижах. Получается писк идёт из самой панели а не как раньше из задних колонок?
Нет возможности отфоткать траекторию шланга кондиционера низкого давления (толстый) на Xray? Меня интересует, как этот шланг расходится с генератором и ресивером. Там длинная трубка идёт интересной формы от компрессора
Попробую сделать, фотографии тебе в личку скину.
Буду благодарен
LexBor
Мне вот всё интересно как реализован парктроник на престижах. Получается писк идёт из самой панели а не как раньше из задних колонок?
Там вот такая вот кракозебра стоит. Хотяб сверху отфоткать, как мимо ресивера проходит трубка и последующий шланг. Задумываюсь о том, чтобы на Калину приспособить
Вообще в приборку смысла лезть не было
Пожалуйста очень надо
Здравствуйте подскажите где в гранте блок парковка комплектация престиж
В приборке интегрирован
Здравствуйте проблема в том что он выдает ошибку 1.2.3 . Покупал один датчик не помогло . Не знаете в чем причина
При включении задней один писк (в сам момент включения), а затем три писка идёт?
Один короткий другой длинный и пошёл один писк два пеика три писка пробовал ставить один новый датчик ничего не изменилось
На пропадание контакта LIN-шины похоже, раз все 3 датчика в ауте
Под бампером был перебит разъём общий для всех парктроников после этого такая проблема началось был как раз удар в бампер
Ну так с этого и надо начинать. Скорее всего там контакта нет
BUG939
Под бампером был перебит разъём общий для всех парктроников после этого такая проблема началось был как раз удар в бампер
Есть фото повреждения проводки?
Нет через неделю сниму
Turbomotor-412
При включении задней один писк (в сам момент включения), а затем три писка идёт?
Я что-то не пойму по схеме у меня на разъёме всего лишь 26 контактов в первом рисунке на схеме нарисованы 33
На первой схеме межжгутовые разъём, а не разъём приборки
А где находится номер жгутовый разъём он идёт в блок предохранителей
Это черный разъём под панелью слева снизу. Но туда лазить не надо
Turbomotor-412
При включении задней один писк (в сам момент включения), а затем три писка идёт?
+79003156665 можете писать WhatsApp удобнее