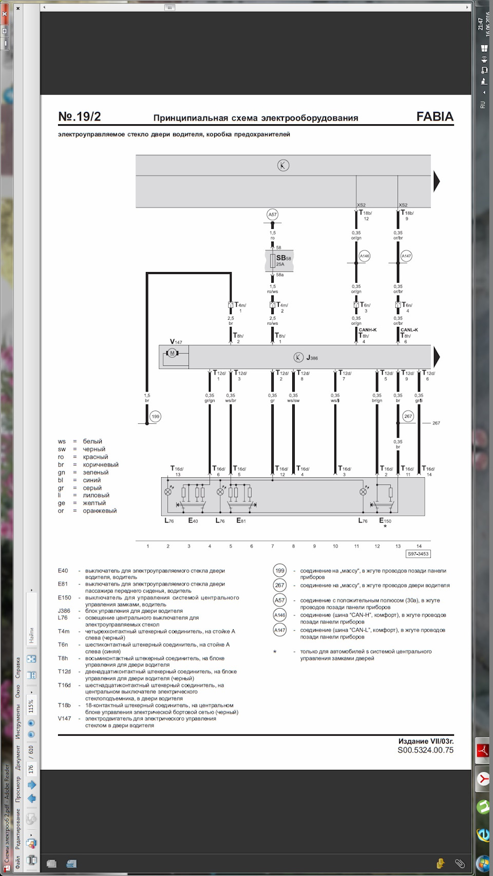
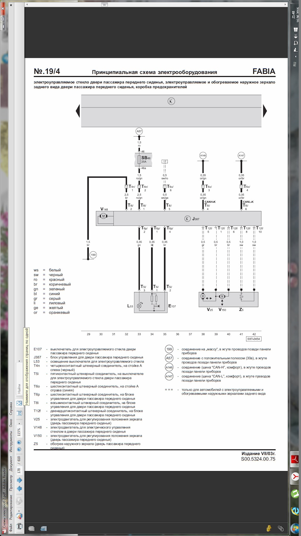
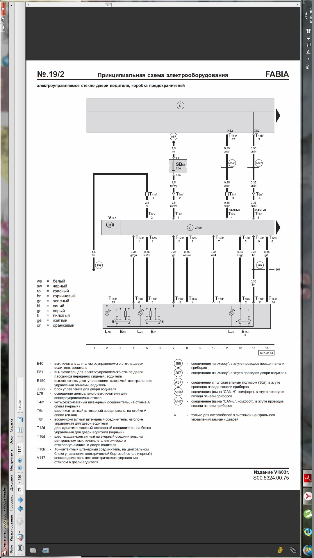
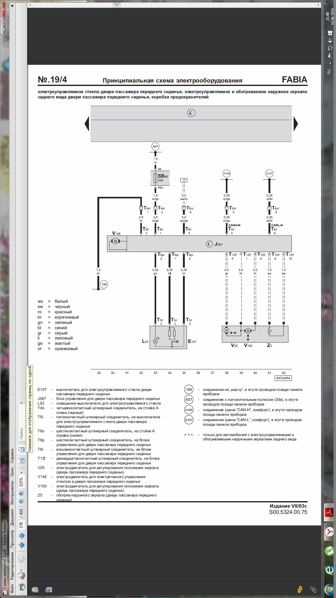
Ну вот наконец пришли мне мои передние ЭСП. Давно хотел, но сами знаете цена на них кусается.На МСК разборках одни моторчики по 4500 р. А тут Д2 наткнулся на разбор, заказал сначала пластиковые накладки www.drive2.ru/l/10206361/ понял что не развод, решил заказать весь комплект (Карты железные с механизмами, два моторчика, кнопки с блоками управления и две дверные косы, цена вопроса 7200 р. Два дня пути и они у меня.Осталось всё собрать и протянуть проводку от стойки до стойки.Блок комфорта оказался у меня такой же как и на доноре, поэтому брать не стал его.




Огромное спасибо sartimoshka за схемы





Комментарии 8
Очень радует, когда делают по уму! Молодец!
Сам не люблю когда колхоз, делать так делать хорошо)
Ну че, круто)) Поздравляю и жду отчет об установке!
Спасибо) Всё будет)
ох не легкая работа предстоит
Ну часть ты мне уже подсказал и часть Дима, отдельно вам спасибо))
Да не за что))) надо еще отключить у тебя чудо сигналку… что бы феншуй наступил))
Это да)