Как известно в полнопоточной масленной системе двигателя змз5311 стандартный масляный фильтр не умещается под капот Волги по этому этот узел подвергся доработке. С начала как у всех по чертежу был выточен переход под фильтр Газель, но даже не был подключен, потому как в скоре было принято решение об изготовлении нового впускного коллектора и места под фильтр на нем не было! За основу был взят переход на масленный фильтр М2141 с двигателем УМЗ421, к нему добавлен термоклапан змз409, изготовлен кронштейн для установки на место механического бензонасоса, все равно теперь он нам не нужен!










Комментарии 18
Идально+
А вариант установки фильтра как у 505 не рассматривался?
Рассматривал. Разные варианты рассматривал, но остановился на этом, свободное место появилось после удаления бензонасоса вот и решил на его место "примудрить")
Ясно. Я буду ставить как у 505, если получится.
У 505го крышка своя идет и патрубок охлаждения направлен не как у 53го, иными словами там где фильтр стоит у 505го, у 53го идет выход с крышки на патрубок радиатора.
Я в курсе.
GazRod
У 505го крышка своя идет и патрубок охлаждения направлен не как у 53го, иными словами там где фильтр стоит у 505го, у 53го идет выход с крышки на патрубок радиатора.
GazRod
У 505го крышка своя идет и патрубок охлаждения направлен не как у 53го, иными словами там где фильтр стоит у 505го, у 53го идет выход с крышки на патрубок радиатора.
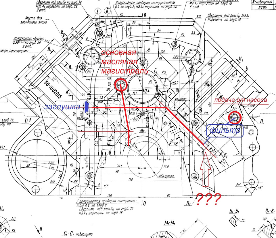
Просто наличие двух последовательных (выход-вход) масляных ходов РЯДОМ не даёт мне покоя.
Не рядом, все равно трубкой придётся вести магистраль за помпу.
Почему? Там же каналы общие! Посмотри Атлас, стр. 49, Вид — Щ.
В каком месте, магистраль идёт по 2й половине Блока.
Секунду…
Цветом выделить?
что то напутано в вашем случаи
Оси каналов выделил красным
GazRod
что то напутано в вашем случаи
Что мешает сделать ТАК?
Места нет раз, некчему крепить переходник два, так и так вести трубки, вывод на прямую, то тут нужен именно 505й корпус фильтра (или поизвращатся с переходниками) и засверливать блок на слив масла и доп. крепления, если удасться реализовать по мясу, блоки отличаются отливкой.
Блоки отличаются, согласен. Но на чертеже 53й блок, если даже они и отличались отливками, каналы в блоке у всех расположены одинаково. Подача масла в одном и том же месте. Где стрелка расположен датчик давления.
Во всех 4х каналах есть резьба, надо пытаться крепить всё на ней. Хотя места крайне мало — согласен.
GazRod
Места нет раз, некчему крепить переходник два, так и так вести трубки, вывод на прямую, то тут нужен именно 505й корпус фильтра (или поизвращатся с переходниками) и засверливать блок на слив масла и доп. крепления, если удасться реализовать по мясу, блоки отличаются отливкой.
505-й корпус в топку! Уж если изобретать что то, так сразу под одноразовый.
Придумали же переходник с центрифуги/колокольни под фильтр!
Эх… Жаль блока экспериментального нет на балконе…
:))