Наконец погода позволила провести на улице больше часа и не околеть, поэтому была принята попытка внедрить климат. Кстати забегая вперед, установка заняла у меня 3 дня примерно по 10 часов в день. Правда, довольно много времени ушло на то, чтобы разобраться в схемах, т.к лезу в автоэлектрику в первый раз. Поэтому попытаюсь максимально подробно все описать, если вдруг кто еще рискнет :)
Для начала я решил добраться до места установки датчика света и понял что без снятия торпеды туда вообще никак не получается подлезть, да и работать с проводкой проще, когда торпеды нету. Торпеду снимал по мануалу KingDiamond

Я нашел еще одно описание установки климата на элантру, чуть более подробное, спасибо rusty42. Решил так же сделать переходник от старого разъема на новый, но есть поправки:

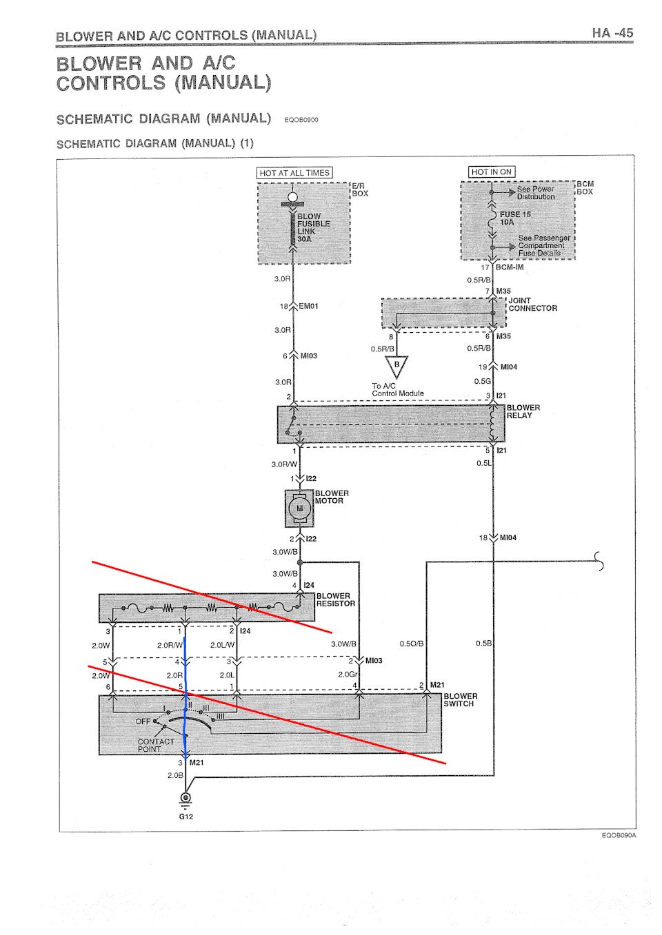
В общем, переходник я сделал, правда не с первого раза, сначала запаял все зеркально, не с той стороны смотрел на выпаяный разъем из старого блока печки. Подключил подушки и приборку, проверил — работает, скорость регулируется старой крутилкой направление обдува блоком климата.

далее убираем крутилку от старого блока перчки и делаем перемычку между 3 и 5 пином разъема (на 5ом провод пожирнее):

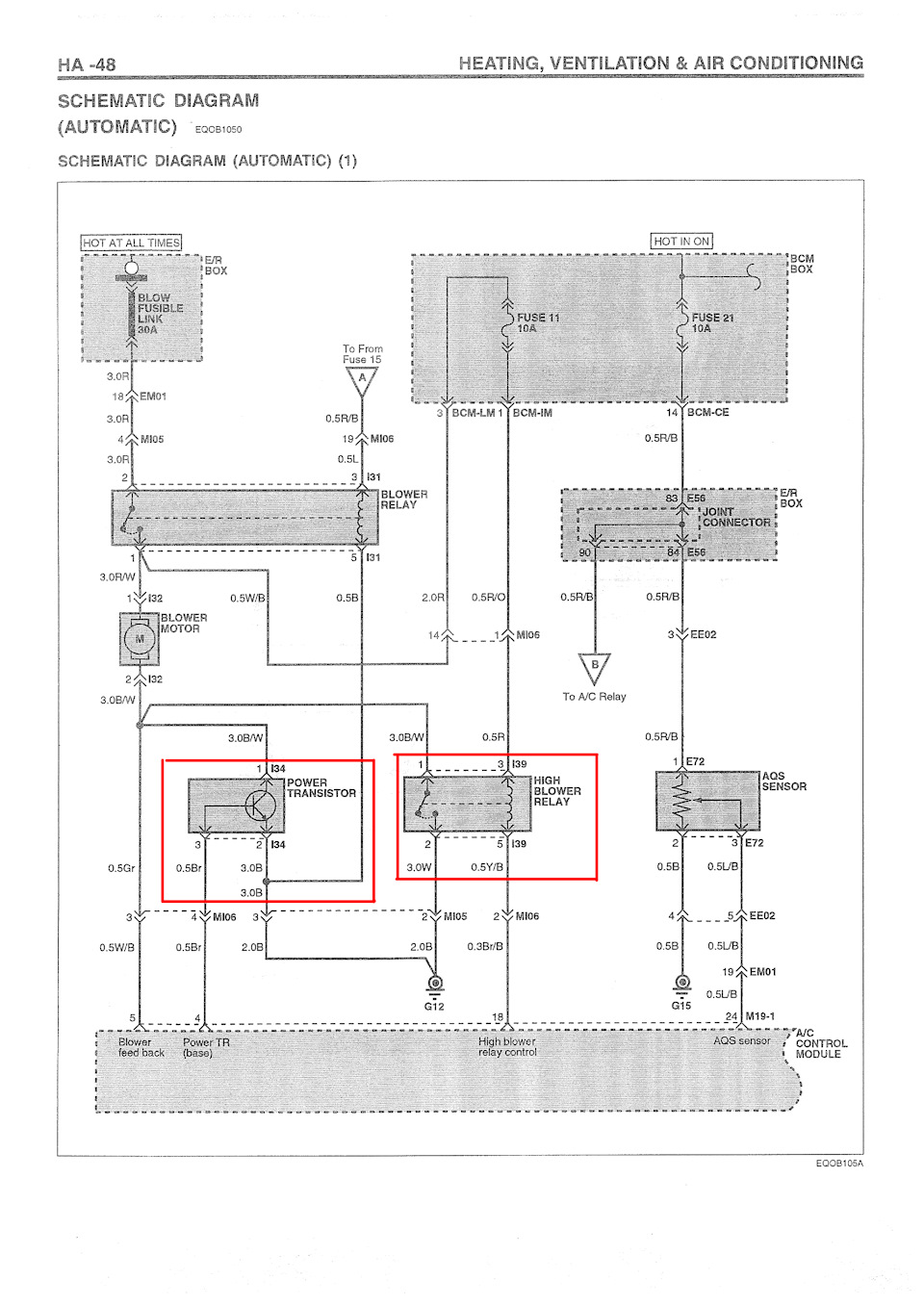
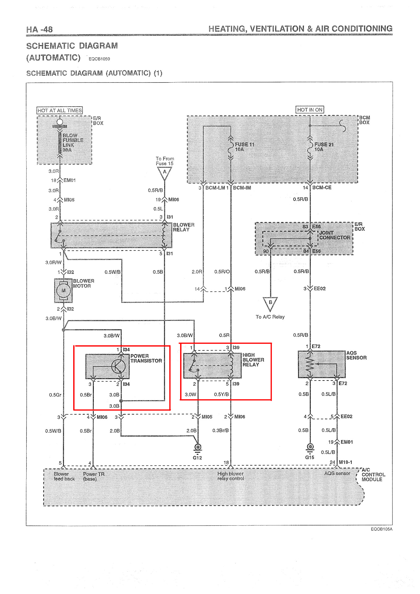
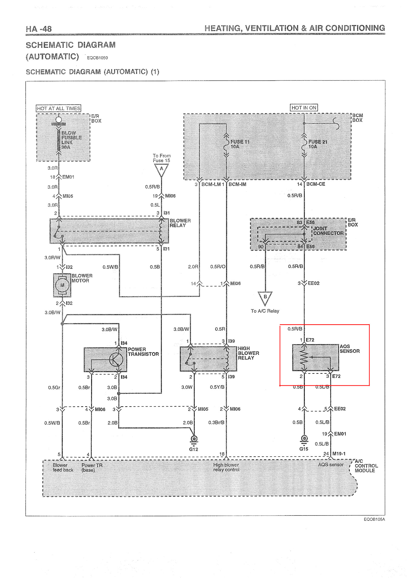
ставим силовой транзистор вместо резистра в блок печки и реле полной скорости вентилятора, это позволит блоку управлять скоростью вентилятора печки.


— 1 пин старого разъема силового резистора (это провод от 5 пина разъема от крутилки, который мы замкнули перемычкой) идет на 2 пин силового транзистора, так же туда вешаем провод от 2 пина реле полной скорости (скручивал все болтовой клеммой).
— Провод от 1 пина силового транзистора и 1 пина реле идет на 4 пин старого разъема силового резистора.
— Провод от 3 пина силового транзистора идет в 4 пин разъема М19-1 блока климата.
— Провод от 4 пина реле идет на 18 пин разъема М19-1 блока климата
— на 3 пин реле подаем питание, я взял его от питания печки

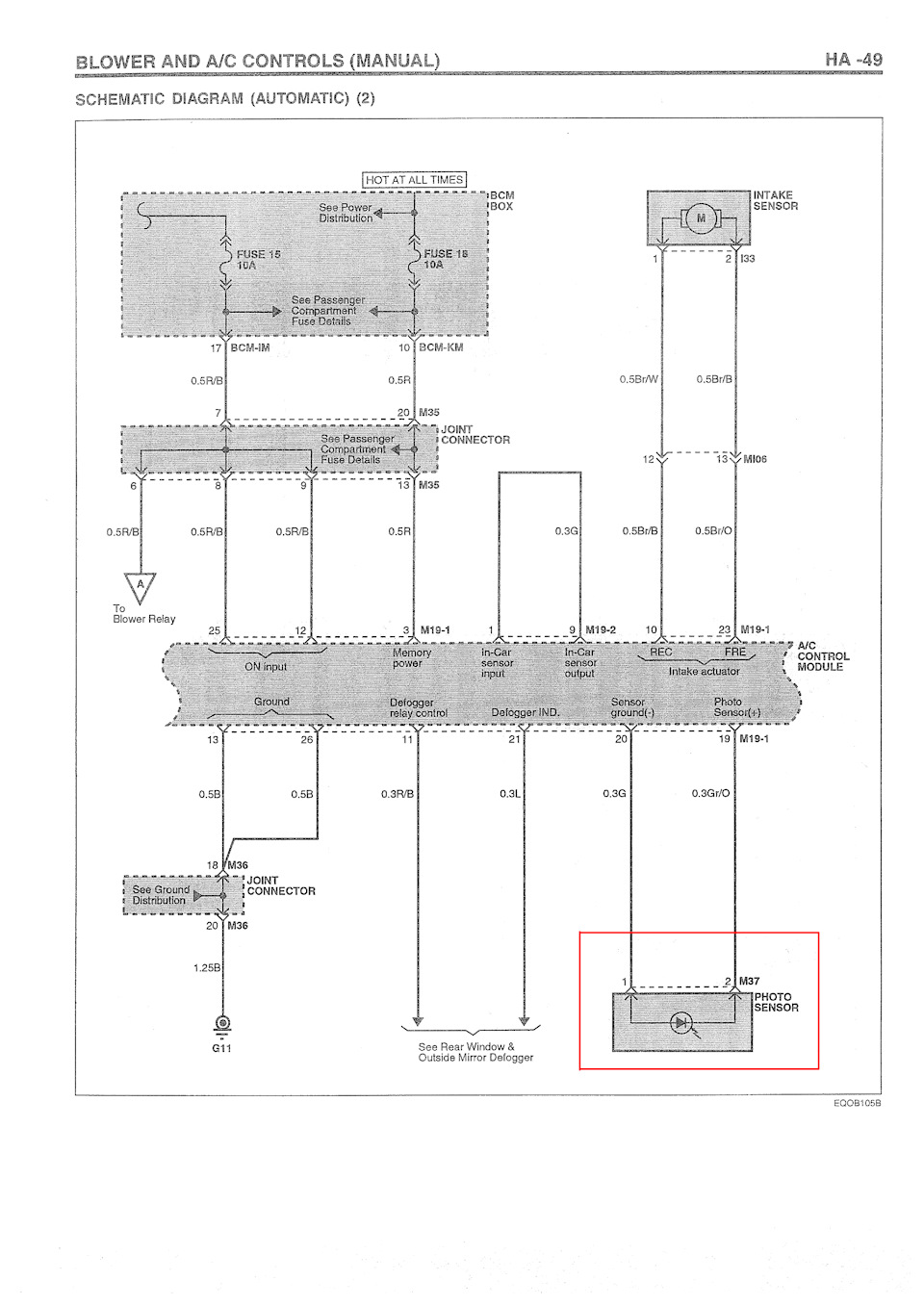
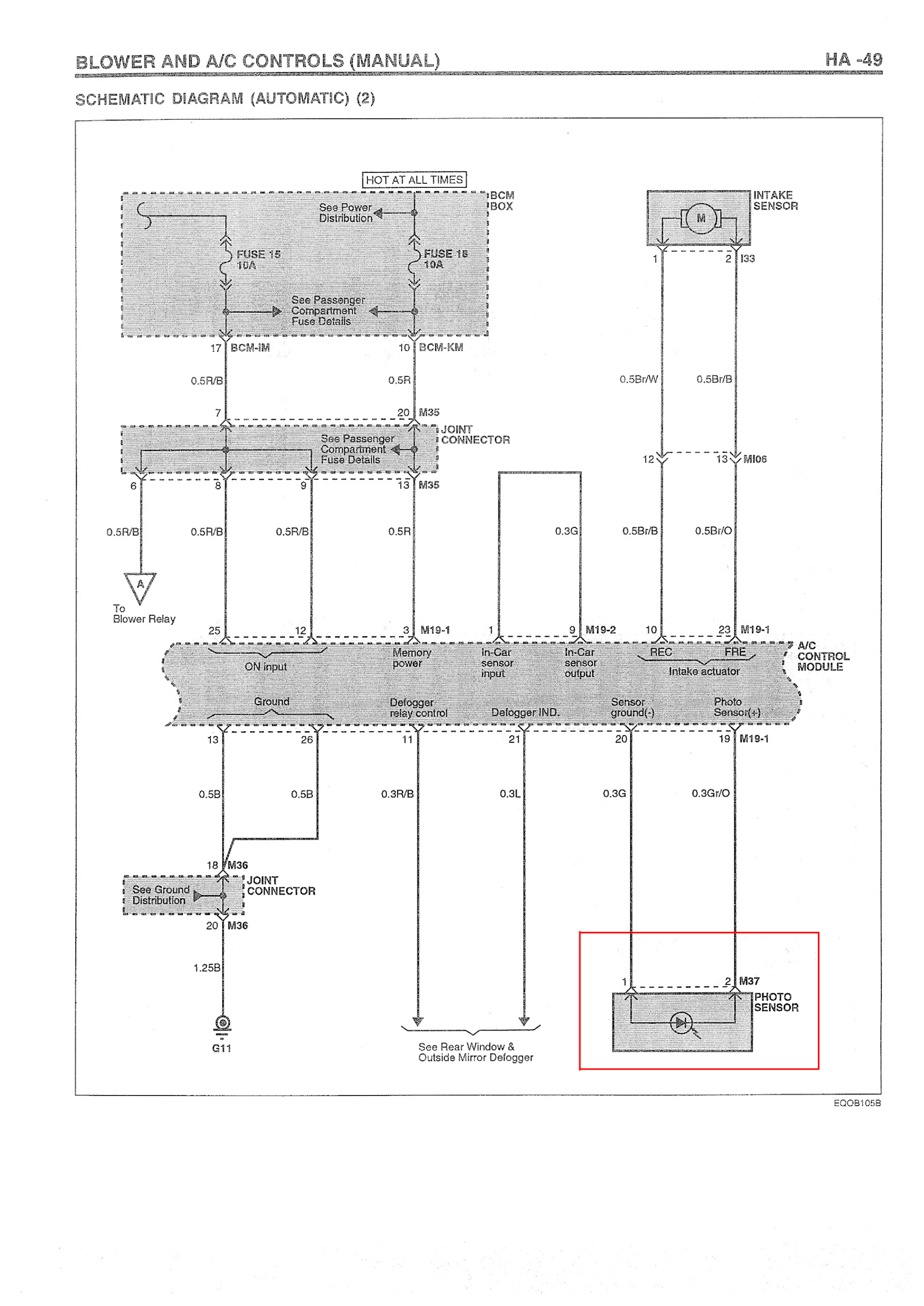
Теперь блок климата может управлять скоростью вентилятора и положением заслонок, далее надо дать блоку климата возможность включать кондей, так же повесить и подключить внешние датчики.
Начнем с кондея, со стороны водителя висит маленькая черная хреновина, снимаем с него 3х пиновый разъем и откусываем два провода, идущие в корпус испарителя, удлиняем их и пинуем на 4 и 16 пин разъема климата М19-2, (разницы какой провод куда — нет). На разъем от маленькой черной хреновины делаем перемычку между 2 и 3 пином.

Теперь работает кондиционер.
Остались внешние датчики:
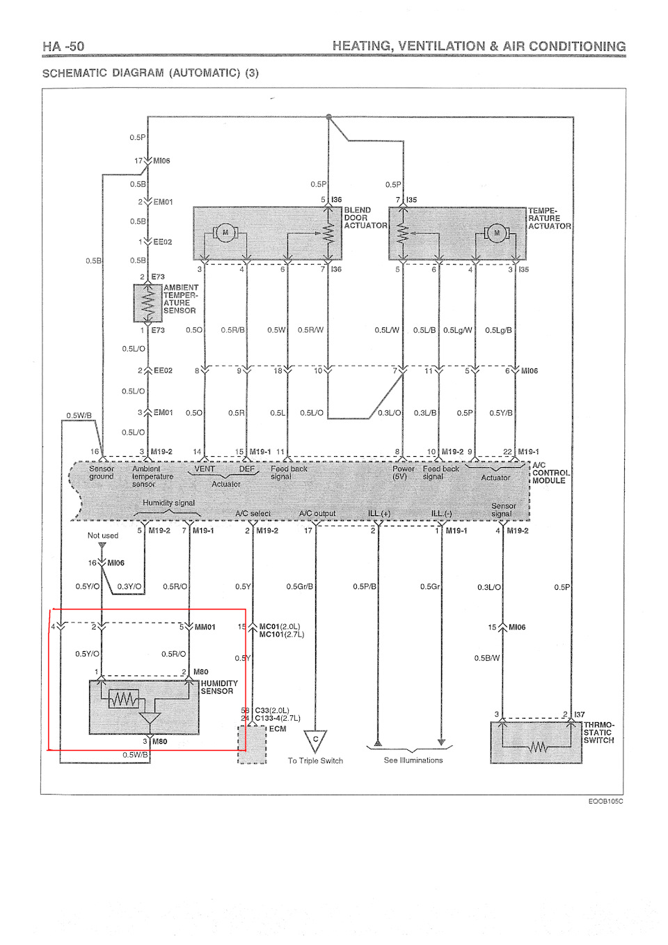
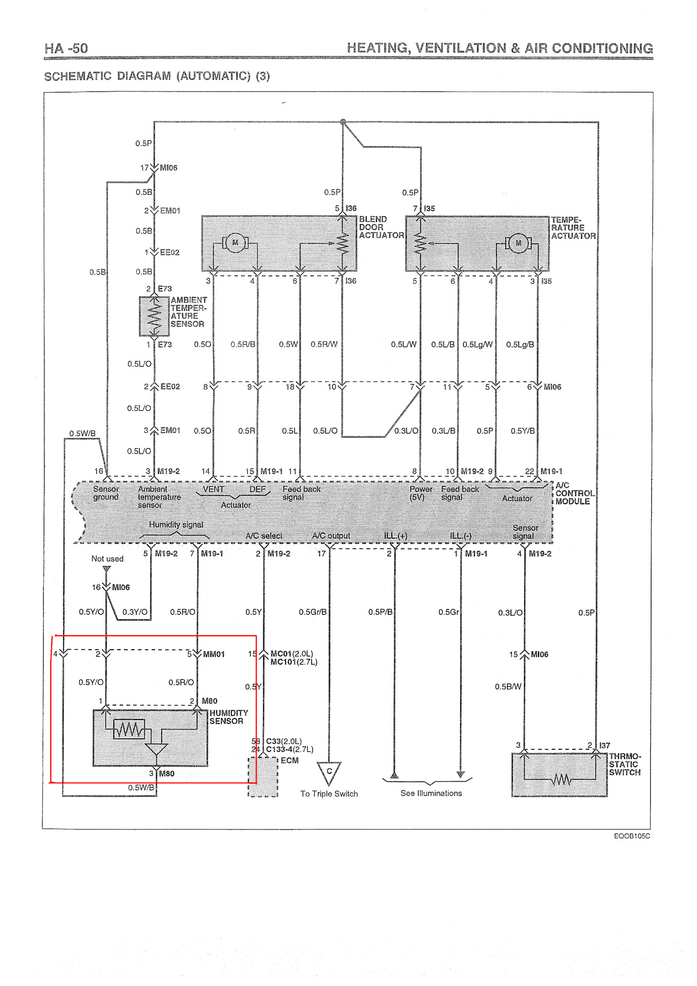
датчик влажности

провод с 1 пина датчика идет на 5 пин разъема М19-2
провод с 2 пина датчика идет на 7 пин разъема М19-1
провод с 3 пина датчика идет на 16 пин разъема М19-2
провода тянул по правому порогу.

датчик наружней температуры
провода от него идут на 3 и 16 пины разъема М19-2 (все равно какой куда)
устанавливается за бампером
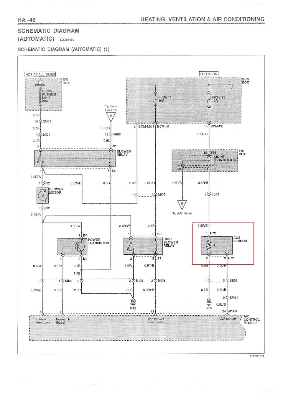
датчик загрязнения воздуха

на 1 пин надо подать питание 12В, по схеме надо его брать с предохранителя 21 (но это я делал под вечер второго дня, поэтому взял с питания магнитолы)
на 2 пин землю
провод с 3 пина идет на 24 пин разъема М19-1 блока климата.

датчик света

Штатный датчик света это тупо фотодиод, стоит он вместо заглушки с водительской стороны, датчик был в косе, которая мне пришла, но самой крышечки не было, а в ней стоит инфракрасный фильтр, поэтому штатную просто заглушку не поставить, в итоге я купил датчик света, вместе с датчиком автоматического включения света в темноте (он стоит со стороны пассажира, размер заглушек разный). Разобрал, там стоит два фотодиода, один идет напрямую на 1 и 2 пин разъема, он то нам и нужен, соотвественно чтобы понять где плюс где минус смотрим мультиметром ток, который он дает на свету.
плюс идет на 19 пин разъема М19-1
минус — 20 пин М19-1

Датчик ставится сверху в торпеду, но когда торпеда установлена, он не влезает, поэтому не совершайте моей ошибки, установите его до крепления торпеды.

Без проблем все-таки не обошлось, только когда все собрал, понял что часы от старой рамки не подходят к новой, и остаются гигантские зазоры у кнопки аварийки. В остальном блок работает во всех режимах.

Всем удачи )







Комментарии 19
подскажи, на тибуроне с климатом печка классно работала, вчера холодно стало включаем и дует холодным, вход и выход у трубок раскаленный, я так понимаю проблема с какой то заслонкой
Привет, много времени все это занимает?
У меня ушло два световых дня
Не подскажешь куда обратиться для такой переделки?
Я не знаю, я спрашивал в паре сервисов в СПб, все отказалась. Да и мне кажется, что проще и надёжнее сделать самому
Мне тоже отказали в нескольких сервисах
OnlyWWW
Я не знаю, я спрашивал в паре сервисов в СПб, все отказалась. Да и мне кажется, что проще и надёжнее сделать самому
Во сколько ты бы оценил эту работу?
OnlyWWW
У меня ушло два световых дня
Купил давным давно рамку а затем ещё одну
Есть человек который продаст мне все остальное( датчики провода)
У него разборка
А вот с шарящим человеком проблема
Я переехал в другую страну.
Есть все схемы и фото, так же ссылка на парня, который установил климат в элантру, у которого я взял эту идею.
За неделю, пока идут запчасти, можно легко разобраться самому в схемах, а потом за выходные все поставить, главное чтобы было где этим заниматься
Очень рад за тебя и одновременно жаль что уехал)
Ну что ж
Буду тогда сохранять картинки и пытаться разобраться
Спасибо большое
А в родную проводку ни как нельзя сделать?)))
Сейчас тоже самое делать планирую)))
Можно обратиться будет?)))
ну по сути я в родную и делал, косу купил только ради разъемов, если найти блок климата и датчики с раъемами — будет все супер )
Будут вопросы — обращайтесь )
А как тянуть два датчика AQS который и температуры воздуха из под капотки?
Все куплено) блок, датчики, разъемы.
И проводка от климата есть) но на сколько я понял, проводка без климат контроля уже содержит разъемы для датчиков.
И вот с силовым реле не понял где оно стоит что бы сдернуть с донора.
Датчик температуры и AQS тянуть там же где проходит штатная проводка, под левым передним крылом, как это сделать проще посмотреть по установки сабика, там тянут питание в багажник.
У меня не было ни одного разъема под датчики для климата в старой проводке, я тянул отдельно провода (на фотографиях куча белых проводков). А вот штатные крепления под все датчики есть.
Реле полной скорости вентилятора снизу справа под корпусом печки, если снять бардачок и залезть туда головой, увидите, на машинах с климатом их там две штуки, нужное справа (ближе к двери).
Питание на усилители у меня там и протянуто.
Вот что меня и смущает, что у меня датчиков и климата нет, а вся проводка с выходами есть.(ну или я так думаю) но только фишки к крутилкам печки и т.д. другие!и проводка не понятная фотки сделаю скину.
Пять баллов!
Ппц ты заморочился, уважуха)
Большое дело сделали! А в схемках да, мог ошибиться.
У меня, кстати, бывает что заслонка забора воздуха в салон глючит, а в остальном пока работает.
У меня вроде пока все работает без проблем, единственное надо питания для датчика aqs было брать из нормального места, при автозапуске питание на магнитолу не идёт, и блок будем что датчика нету :/