
Покатавшись недолгое время на машине, очень не хватало USB порта для музыки с флешки. Диски я писать уже почти разучился и чистые дома не всегда есть и все таки 21 век на дворе. А радио штатная магнитола ловит не очень, за городом почти ничего не ловит. Поэтому озаботился как подружить штатную магнитолу с USB.
Поизучав мануалы и электрические схемы было выяснено что USB в митсубиси это отдельный блок и на машине есть под него крепления. Также выяснил что эти блоки бывают просто USB а еще бывают совмещенные с Bluetooth. Также узнал что возможно в моей машине уже есть проводка под все это хозяйство и возможно получится установить этот блок.

Разобрав бардачок убедился что у меня есть крепления для блока.
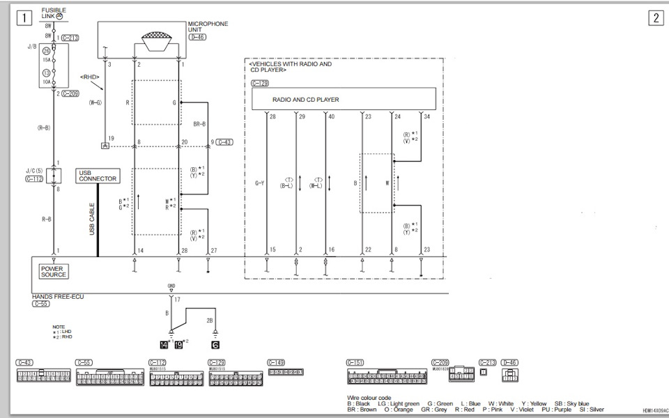
Поизучав электрические схемы # стало понятно, что если у меня есть проводка то на разъеме С129 (это 22 контактный разъем) должно быть не менее 7 проводов. На этот разъем идет индикация на борткомпьютере, управление с кнопок руля, вход AUX и как раз вход звуковой вход с блока USB и шина управления этим блоком.
Вытащив магнитолу меня ждал очень большой облом. Проводки под блок USB не было. Хотя сняв потолочный плафон я там нашел проводку с разъемом для микрофона и проводку для датчика дождя и света. Стало понятно чтобы подключить этот блок надо его искать с разъемом. На просторах интернета был найден блок от 4 Паджеро вместе с переходной проводкой и железкой крепления. на алиэкспресс был заказан хитрый USB кабель для блока.

После как получил блок его крепеж был отпилен и подогнут по месту для установки в штатное место.
Получилось как то так.

Прикручиваем блок на кронштейн.

По месту была просверлено еще одно отверстие на кронштейне и блок был прикручен на штатное место. На этом механическая часть закончена, и можно приступать к электрике.
схема подключения блока #
По электрике пришлось купить 3 метра тонкого 2-х жильного экранированного кабеля. Я брал самый тонкий микрофонный кабель, как раз там 2 жилы и экран. Еще надо короткие см по 40 провода для удлинения хвоста от 4 Паджеро. Дальше вытащил пины из 14 контактного разъема на хвостике, разрезал провода примерно посередине и врезал удлинительные провода. В результате хвостик стал около 60 см длиной. Также как на схеме удлинил экранированный провод от блока к магнитоле. Единственное сделал подлиннее провода питания (это провод с 1 контакта блока и с 17 контакта). Перед установкой обязательно отключать массу с аккумуляторов. Прокинул экранированный провод для микрофона вдоль всей панели и вывел его в район левой ноги водителя. Там за пластиковой обшивкой находится 20 контактный разъем С43 в который приходит проводка от микрофона с крыши. Добравшись до этого разъема вытащил из него пины от микрофона и напрямую припаял к ним протянутый экранированный провод. Дальше по схеме вставил пины с блока в разъем С129 магнитолы. Минус припаял к минусовому проводу магнитолы. С плюсом питания блока немного сложнее. Этот пин вставляется в разъем С112 там как раз под него его родное свободное место есть. Этот разъем находится справа и снизу от магнитолы, туда идет пучок красно-черных проводов. Снимаем разъем с крепления к панели и вставляем в него наш пин от блока. На этом все.
Подключаем разъемы в магнитолу, подключаем разъем к блоку, подключаем USB разъем для флешки, собираем бардачок, ставим на место магнитолу, подключаем аккумуляторы. Включаем зажигание и при переключении режимов магнитолы кнопкой MODE на руле видим надпись USB на экране и радуемся.
Появляется еще и Bluetooth audio но я этим режимом не пользуюсь.
В принципе если нужно только USB на этом можно остановиться, но для полного функционирования блока я купил микрофон 8761A002 правда пока пришлось повесить его на проводах.

После подключения микрофона появилось голосовое управление и возможность разговаривать через этот блок по телефону.
Телефон привязывал по инструкции от ASX, эти блоки одинаковые для всех автомобилей Митсубиси, поэтому инструкция везде одинаковая.
Теперь снова можно забыть про диски.






Комментарии 29
Добрый день а модуль 8785a026 на гу w13 подойдёт
Должен подойти, я как понял они по железу одинаковые, отличаются только прошивкой.
Добрый вечер! Микрофон установили на место? Не нашёл в бж. Тоже ставить готовлюсь, ищу варианты.
Пока еще не установил, осенью решетку от микрофона БМВ купил, в нее наш микрофон почти как родной встает, покрасил, вот весной установлю. Код решетки 51 44 7 903 792
А она чёрная?
По каталогу БМВ смотрел там нескольких цветов есть, но доступная в магазинах только черного цвета. С этим кодом черная
Понял, спасибо! Тоже посмотрел, тоже буду наверное заказывать! Заказал такой 51447230894, померил, но микрофон по длине становится вровень с краями. Чуть маловат. При резке потолка не будет права на ошибку) Ищу альтернативу!
В эту решетку все встает с запасом
День добрый! На фото не видно номер переходной проводки, может случай есть номерок ?
8522B460 номер проводка от Pajero 4. Стоит космос. Проще отдельно разъем найти.
Я уже купил, только мне показалось мне не тот прислали. Сегодня проверил, вроде как подходит к блоку блютуз, только с другой стороны придется переделывать. Со стороны машины за бардачком "папа" стоит на 24 пин и на переходника тоже "папа".
На блок идет 28 контактный разъем. Разъем за бардачком на 24 пина это разъем штатного парктроника
Не, штатный парктроник где прикуриватель, а этот разъем за бардачком. Вот он на фото.
Все правильно, где прикуриватель там кнопка включения парктроника стоит, а в разъем за бардачком сам блок парктроника включается.
Понятно!
Еще бы ссылку на "заказан хитрый USB кабель для блока".
например вот ru.aliexpress.com/item/AU…face-Car/32707461446.html
Подскажи, а к W13 можно такое безобразие поставить?
Конечно, у меня сейчас с W12 все прекрасно работает
Понятно. Я и забыл что такие тоже ставились)
w777 это что такое? Стандартная магнитола? С двумя крутилками или с одной?
Это однодиновая хрень!
Vernuvshiysya
w777 это что такое? Стандартная магнитола? С двумя крутилками или с одной?
вот такая
к какому майфуну подключал?
w777
Добрый день. Можете распиновку нарисовать, как подключали.
madspider
Добрый день. Можете распиновку нарисовать, как подключали.
Нумерация контактов в разъеме со стороны проводов
Спасибо.
Я тут понял, что 698 и 777 отличаются. ;(