Думаю, почти каждый владелец дореста знаком с проблемой ПТФ. Иногда возникало острое желание переломать руки тем, кто спроектировал схему питания ПТФ (2 лампы по 51 Вт) напрямую через подрулевой переключатель, без реле.
Кто-то просто оставался без ПТФ, кто-то утром обнаруживал высаженную в ноль АКБ, потому что ПТФ включились сами, кто-то мучился со светомузыкой по причине оплавления и разрушения разъема на подрулевой… В общем, проблема. Решение — доделалть за криворукими/ленивыми/жадными (нужное подчеркнуть) инженерами/менеджерами (нужное подчеркнуть) фирмы Крайслер 2000-х годов.
Варианты виделись разные, окончательный представляю здесь.
Что было использовано: несколько отрезков проводов, в основном из донорской косы, некоторые контакты оттуда же, кусок блока предохранителей и реле из-под капота (тоже донорский), родное крайслеровское реле, гофра, некоторое количество инструмента, расходки и свободного времени, сервис-мануал.
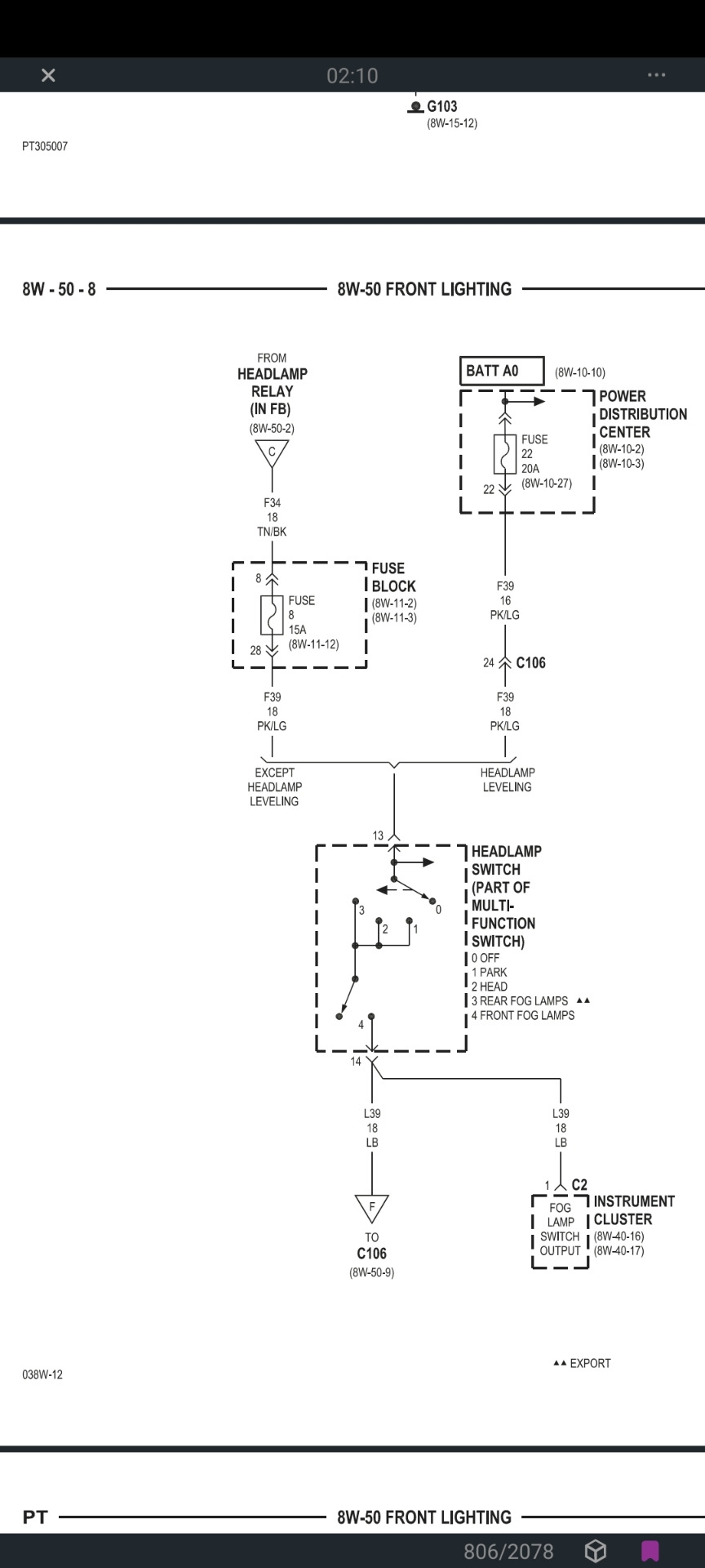
Для начала, отслеживаем схему питания ПТФ:


По схеме видно, что коммутация происходит именно в подрулевом, ток очень высокий, отсюда и оплавление разъёма и порча самого выключателя птф в подрулевом. Его, кстати, тоже по ходу пъесы пришлось восстанавливать.
Из HeadLamp relay ток через пред на 15А в блоке предохранителей в салоне идёт на подрулевой, превратившись после преда из цвета tan с черной полосой в розовый со светло-зеленой полосой. И в таком цвете он идёт на вход подрулевого. Оттуда, разветвляясь, и меняя цвет на светло-синий, уходит на 3 потребителя: лампу в приборном щитке, и, через большой разъём C106, непосредственно на лампы ПТФ.
По задумке, хотелось минимум колхозных элементов и совсем не резать родные провода (есть у меня такой бзик, не люблю резать заводские элементы, если только совсем уж нет другого выхода).
Поэтому, решил "врезаться" как раз в разъём С106: вход на него использовать как управляющий сигнал на реле, а к выходу прицепить уже силовой провод с реле.
Но начнем по порядку: снимаем подрулевой, для этого нужно снять кожух рулевой колонки (2 винта) и отстегнуть пару разъёмов. Внимание! Левый разъём как раз и страдает, у меня он уже был заменён, в вашем случае, возможно, что он просто рассыпется в руках. Поскольку, там присутствуют и плюс, и масса, лучше производить эти действия со снятой клеммой АКБ! Возможны КЗ, выгорание предов, или ещё чего похуже.
Подрулевой в руках, аккуратно разбираем, лучше пофоткать, как там и что внутри, на случай выпадания деталей, и чтобы вспомнить потом, как они стояли. И видим, насколько же мала площадь контактов, через которые проходит ток в 8-9А.


Смысл в том, что в выключенном состоянии пластиковый штырёк поджимает пружинку, и отводит контакты от "платы". Со временем, из-за огромных для такой маленькой площади токов, штырёк оплавляется, последствия могут быть самые разные: от просто неработающих ПТФ, до замыкания их на постоянную работу, смотря как расплавится. В расплавленном виде сфоткать забыл. Восстановил с помощью кусочка стержня от шариковой ручки, токи теперь здесь будут минимальные, нагрева не будет.

Также, мне не понравилось состояние этого П-образного элемента, напаял контактные площадки и подравнял их.

Собираем в обратном порядке, тут и могут помочь сделанные заблаговременно фото.
Далее, из донорского подкапотного блока предохранителей и реле (Power distribution center, PDC, на схемах в сервис-мануале), я вытащил один из модулей, под три реле

Он сидит там на двух защёлках. А в родном как раз под него было свободное место. Снимаем корпус воздушного фильтра, откручиваем PDC от кронштейна (один винт со стороны моторного щита, не сразу и увидишь) и отщелкиваем спереди, тянем его вверх.

Откручиваем металлический кронштейн, отщелкиваем нижнюю крышку PDC. Помимо модуля реле, из донорского взял ещё один провод от предохранителя, чтобы защитить силовой провод на реле родным предом. Как раз есть свободное место в колодке с общим плюсом.

Для этого лучше вооружиться приспособой для распиновки разъемов, обычный набор с Али вполне справится. Снизу надо отщелкнуть желтый крепёжный элемент, иначе провод не защелкнется. Работа с непривычки может занять много времени, лучше потренироваться на донорском блоке.

Фото PDC изнутри дополнительно сделаю, для понимания процесса.
UPD, как и обещал, фото PDC изнутри. Наша задача- отщелкнуть жёлтые крепежи, а сделать это через четыре отверстия сверху, рядом с посадочными местами предохранителей.


В свободное место ставим модуль с реле. Я заполнил контактами все три места, на будущее, вдруг ещё какой колхоз задумаю.

Далее, идём в салон, снимаем панель, в которой есть окошко к блоку предохранителей. Откручиваем сам блок предохранителей, аккуратно отводим в сторону.

Видим два разъема, нам нужен серый, справа, это и есть C106.


Искомый провод — голубой, контакт номер 1

Отстыковываем разъем (черный рычаг сидит на защелке, аккуратно), снимаем его нижнюю часть с металлического кронштейна, на обеих половинках разъема вытаскиваем жёлтую скобу на несколько мм, аккуратно распиновываем два раза нужный нам провод.


После замеров, изготовил косу, с использованием разъемов (родных под рукой не нашлось, использовал купленные заранее для подобных поделий с АлиЭкспресс), проводов и контактов из какой-то родной косы, а также лишней гофры, которая нашлась дома. Тут же видны провода с контактами в посадочные места предохранителей (второй пока не использовал).

Отверстие в моторном щите нашлось левее и ниже вакуумника, там, наверное, раньше была резинка, в моем случае, было заткнуто каким-то мотком изоленты, даже не помню, когда и зачем :)
Само же отверстие, скорее всего, используется на автомобилях с МКПП для штока сцепления.


Ответный разъем сделал на выходе из PDC, на случай необходимости отстыковки этой косы для каких-либо целей.

Прокладываем, закрепляем косу, проверяем, что нигде не трет, не задевает за педали, например, обязательно проверяем работоспособность ПТФ, производим окончательную сборку подкапотного пространства и салона, убираем за собой мусор, радуемся :))
Затрат как таковых непосредственно на это мероприятие не было. Что-то было куплено для других целей (как блок PDC, например), что-то валялось дома без дела. Кто-то скажет, мол, зачем такие заморочки, кинул бы просто реле на скрутках, провод на плюс, кнопку в салон, новую, например, между очистителем заднего стекла и TRAC OFF… Времени бы ушло пару часов, а не день. Результат меня радует ка раз таки минимумом колхоза, внешней эстетикой, возможностью использовать штатное реле в случае чего (если выйдет из строя более важное, типа второй скорости вентилятора). Да и просто, хобби у меня такое- иногда приводить в порядок этого бодрячка.
Спасибо, что дочитали. Если будут вопросы — отвечу.










Комментарии 4
Круто, опередил меня… у меня еще только в планах… :)
Ахах, у меня в планах несколько лет висело, но окончательно решил именно в тот момент, когда донорский блок предов крутил в руках, потому что хотелось именно по минимуму колхоза
Огонь, надо тоже напрямую сделать, просто реле на подрулевой не спасло
Молодец, я тоже не люблю "колхоз", если уж и колхозить, то так чтобы инженеры не догадались 😁 Но я ленивый и так и не дошел до установки птф вообще. А сейчас уже и не надо как-то. 😉