
Проблема в следующем, перестал откликаться обдшник и галетта тоже не видит. Тупо горит красный светодиод и там и там.
в разъём тестером по тыкал, на каждом контакте что то есть.
Теперь надо бы понять, сколько вольт должно быть на каждом контакте и куда они ведут.
По любому где то есть инфа, но даже в сервис мануале я этого не нашёл.
машина лансер 9, мотор типо 1.6

Комментарии 24
Раз 7 к линия, почему пустая она?
странно, знает что такое галето, а распиновки обд не знает)
sansanych-honda.ru/stati/7-diagnostika
Машины разные, но мне вот такую штуку скидывали.
Может подойдет. Один фиг все японской сборки.
к своему изумлению нашел то что год назад переписывал из схем по диагностическому разъему.
1 etaks. a/c. abs
4 gnd
5 gnd
7 srs. двс. акпп. иммобилайзер. abs
9 etaks
11 a/c
14 etaks. приборка
16 +12вольт
во, наконец то информацию стали давать.
спасибо.
На сколько я помню, 7 это К линия.
скорее всего судя по блокам на нем висящим.
angelfear
к своему изумлению нашел то что год назад переписывал из схем по диагностическому разъему.
1 etaks. a/c. abs
4 gnd
5 gnd
7 srs. двс. акпп. иммобилайзер. abs
9 etaks
11 a/c
14 etaks. приборка
16 +12вольт
Вроде всё похоже, только 11 у меня пустой
потому что это на климат, с кондиционером там нет проводочка, когда климат там коричневый.
ок, спасибо
angelfear
потому что это на климат, с кондиционером там нет проводочка, когда климат там коричневый.
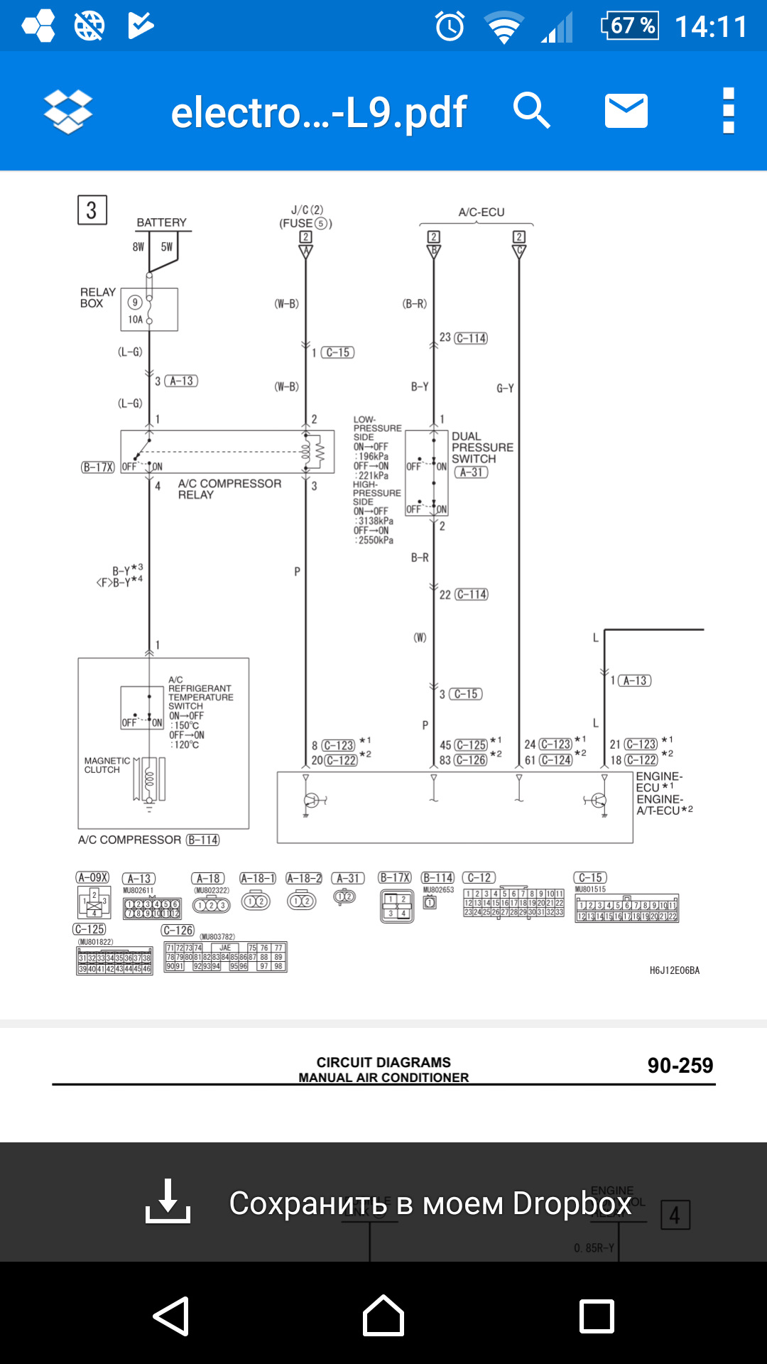
а нет случайно распиновки фишки кондиционера, которая в блок управления подключается?
Что именно интересует? Полная распиновка есть в электросхемах
какие провода на фишке, идущей к блоку включения(плата)отвечают за включения кондея?можно их вывести на отдельную кнопку?
Вулючением копрессора рулит ЭБУ ДВС по команде с блока кондея (не климата, климат может отличаться по подключению, но там тоже рулит только ДВС), схема должна пригодиться,
нашел 2 провода на фишке, их перемыкаю между собой, кондей запускается, 2 пропеллера крутяться, холод идет.это значит в плате и самой кнопке включения проблема?хотя взял плату с разборки, подключил, все равно не работает.может кнопку отдельную тупо вывести?
Ясно, посмотрю.
в электросхемах почти на каждой странице упомянут диагностический разъем, плюс минус там стандартно а вот остальные провода как производителю бог на душу положит, цифровая шина тоже дает напряжение на мультиметр, однако такие вещи осциллографом ищутся.
В гугл распиновка OBD II.
Если мне не изменяет память, у нас используется только k-line
Посмотри diagmoto.ru/04%20kont%20mitsubishi.php
о, спасибо
На здоровье)
2laFirefighter
Посмотри diagmoto.ru/04%20kont%20mitsubishi.php
Вот этот не соответствует по моим пинам.
Что-то в манулае своем блин тоже не могу найти… :)
в гууугле тоже не всё однозначно
Мне тоже интересно)))