Всем привет! За 2 года эксплуатации бумерка, настало время подшаманить ходовую. Давно не дергал колесики, да и не стучало, по крайней мере не слышалось, вот что значит хорошая шумка ))) Как оказалось не так все хорошо, удивился! Кирдык пришел рычагам передним продольным, точнее передним гидравлическим сайлентблокам, опорам задних амортов верхним и нижним, плавающему сайлентблоку заднему! С другой с тороны посмотреть, за два года владения этого превосходного авто это сущие пустяки.))) Закупился Лемфердером.


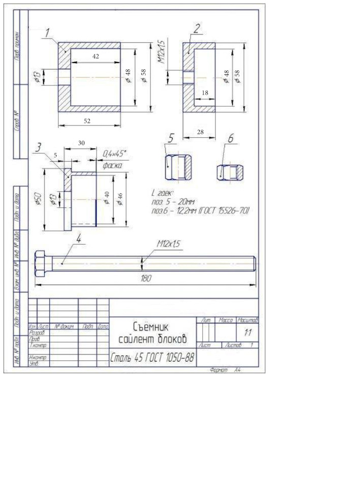
Времени катострафически мало, так что решил делать частями. певым пошел задний плавающий сайлентблок. Разбирать всю ходовую не было желания, так что пришел к идеи изготовить съемник

Замена с помощью съемника оказалась сущим пустяком, пришлось открутить нижнюю гайку с аморта и болт плавающего сайлента и все)))











Ну и как положено после ремонта приняли душ)))


Как появится время буду менять остальное!
Всем Удачи!






Комментарии 21
А можно видео составляющих съёмника пожалуйста?
К сожалению нет
Всем привет. Проводил эту процедуру. Но по аналогии с установленными ранее шарнирами (меняли до меня) запрессовал их глубже. То есть до упора. Перепрессовывать их, или разницы нет?
Спасибо.
А не подскажите каталожный номер заднего плавающего сайлентблока? Левый и правый они одинаковые?
Одинаковый. На первом фото есть номер
Сколько проходили Лемфёрдеровские сайленты?
Езжу очень мало, с тех пор наездил тыс 5 -все ок
После замены сайлентблока, сход-разавл делал?
Не понадобилось
чертеж есть съемника?
Если не выкинул. Можно и заново начертить
если найдешь былобы круто и материал
DimitriyCustom
чертеж есть съемника?
У меня есть .
чертеж в студию))
посмотри у меня в бортовом
DemjanBY
У меня есть .
Привет) есть чертёж ещё?)
привет .
Спасибо) стопорное кольцо новое ставил?)
Вот ты красавчик, сохраню себе! Сделаю такой же!)
отличный фотоотчет) мне казалось пружину надо снимать, а оказывается вот как повисает и держится
стяжку все равно нужно, мне кажестся.