Вот наконец и дошло время до описание мучений по данному вопросу.
Обращать внимание на грамматику не советую, диктовал Гуглу. Оказывается чтобы написать здесь текст надо пройти довольно таки большой квест: Расскажи о своей машине во всех подробностях. Пришлось импровизировать
Итак по теме исследование данного вопроса в наших окрестностях Да и по всему интернету демонстрируют лишь статьи с кратким содержанием: смотрите у меня новая сигналка поставили в каком-то там сервисе Всё круто всё работает как ставили не знаю звоните пишите вот контакты где ставил.
Поискав в интернете и на сайте производителя карты монтажа для Mazda5 получил информацию краткий смысл который: вот жгут под порогом из миллиона проводов ищите такой-то тычьте туда и будет вам счастье.
В общем количество информации уходит в минуса практическая реализация самостоятельно около нуля.
И пожалуйста в своих статьях и коментах пишите mazda5 слитно это позволит через какое-то время в поиске находить информацию конкретно про наш автомобиль, а не про всё семейство Mazda и где в тексте встречается цифра 5. Например: колесный диск автомобилей Mazda имеет 5 отверстий крепления — и это на запрос в поиске "Mazda 5". А оно нам такое надо?
Что реализовано
Самое главное несмотря на отказ производителя сигнализации задействовать автозапуск с бесключевым обходом Pandora CLONE в нашем автомобиле оно таки работает (доступ к функции через задний проход).
Одержана победа над аттракционом "программная нейтраль" с МКПП перед постановкой на охрану
Ну и всякие там приятные плюсики примочки в соответствии с функционалом приобретённого устройства.
В качестве подопытного мой выбор пал на Pandect x-3150 собственно конкретно и будет описан этот вариант. Но принципиальной разницы в выборе модели сигнализации нет. Назначение проводов практически одинаковое, а там уж плюс-минус от модели реализованный функционал — Bluetooth полифония GPRS и теперь еще GPS.
Теперь что придется разобрать в салоне
Накладка порога правой передней двери и следующая за ней накладка между нижней петлёй и бардачком. Большую пластмасску вокруг ручки переключения передач — теперь получится снять бардачок. Открутить но можно не отсоединять магнитофон. За ним откроется доступ к двум винтам верхней панели с экранчиком. Это нам надо для доступа к кнопке аварийки да и провода через верх тянуть легче. Оголить панель приборов и снять панели вокруг замка зажигания, верхняя снимается в комплекте с той что закрывает панель приборов. Подробно останавливаться не будем, полный интернет видосов: Как разобрать салон mazda5.
Начало
Как открывать-закрывать замки дверей?
Самый популярный метод на просторах "разрыв по силе". Из недостатков следует отнести разрезанные два силовых провода и использования двух реле из RMD-5M чем мы лишимся далее одной полезной и одной прикольной функции, Но об этом дальше.
Если вам повезло и у вас на водительской двери есть кнопочки Set и Reset для управления центральным замками специалисты из общества Scher-Khan предлагают воспользоваться ними подключая напрямую к низкотоковым выходам сигнализации. в разделе Управление центральным замком
Я пошел как мне показалось более простым путём подпоявшись напрямую к обмоткам реле управления центральными замками в блоке BCM (под бардачком) Эти выводы реле штатный блок транзисторными ключами соединяет с массой, что будет делать параллельно и наш новый блок сигнализации. Предчувствуя вопросы сразу ответ: Нет, ничего не сгорит, сто раз так делал.

а чёрный провод с красными потоньше это привет от прошлой сигнализации туда было подключено её питание. Не пропадать же заранее защищенному проводу пришлось питание новой сигнализации прикрутить туда же. Этот провод идет к замку зажигания там присутствует постоянный плюс и всё это через предохранитель IG KEY1 30A в моторном отсеке. Считаю данное место подключение питания сигнализации не совсем корректным так как в этом проводе гуляют большие токи поэтому было принято решение: ща всё подключу и потом разберусь с правильным подключением питания. Но мечты не сбылись так всё и осталось.

два синих проводка в моём случае подключаются к блоку сигнализации CH6 CH9. Угадывать какой куда не надо. Канал на закрыть или открыть легче назначить в AlarmStudio потом по факту (там внизу последняя картинка).

Почему именно CH6 CH9

Вскрытие блока сигнализации показало, что что выходы CH6 — CH10 управляются отдельными транзисторными ключами. Ну и в случае вдруг в машину прилетит метеорит и обмотка реле замкнется то можно будет легко починить заменив сгоревший транзистор, реле и машину.
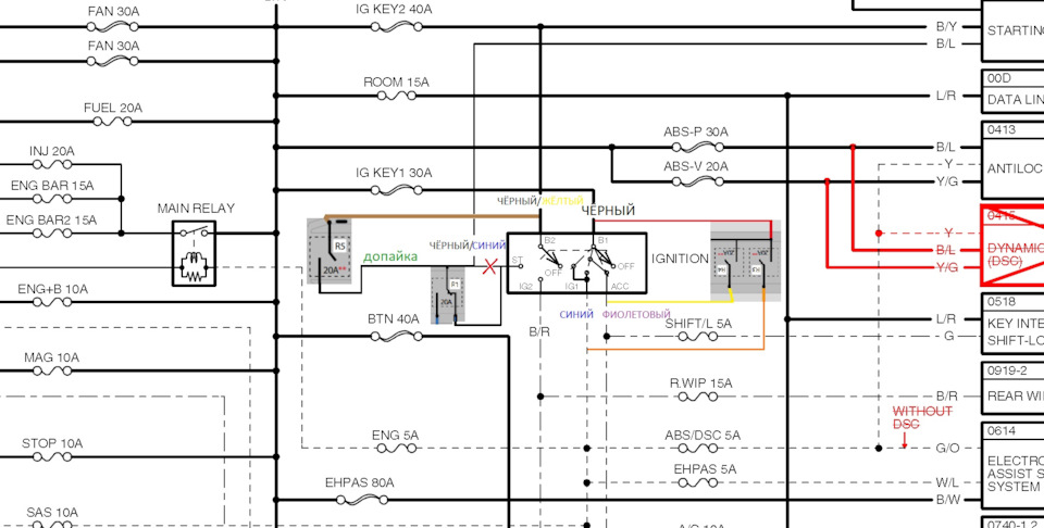
Плавно переходим к замку зажигания.
для реализации автозапуска в соответствии с электросхемой нашего авто

Почему 4 реле
R3 — Зажигание
R5 — Стартер
R1 — Блокировка стартера — это когда с мороза вы прыгаете в прогретую машину вставляете ключ в замок зажигания и по привычке прокручиваете до упора а бендикс начинает жалобно кряхтеть.
R4 — ACC — реализация функции комфорт-спокойствие. Можно брелоком или телефоном активировать включение этого рели и Вы спокойно с ключами Можете выйти из автомобиля а ваши пассажиры будут продолжать слушать музыку. Когда автомобиль находится под охраной включение этого реле не только включит магнитофон но и видеорегистратор который обычно подключается к прикуривателю и можно будет записать пьяные ночные танцы в песочнице.
А посему надо оттюнинговать RMD-5M. Непонятно каким хером думают разработчики сигнализаций если практически во всех более-менее современных автомобилях цепи зажигания и стартера раздельны. Можно конечно и забить подав питание в цепь стартера с цепи зажигания. Но если в цепи реле стартера или проводами там что-то случится то сгорит предохранитель цепи зажигания и вы машину даже с толкача не заведёте.

режем дорожку к крайнему реле с двух сторон сверлим отверстие и паяем новый проводок. Я использовал лишний провод от реле R2 зелено-черный. Кстати про реле R2 Оставшиеся 2 провода подключаем проводкам желтого разъема под рулём. Манипуляции с этим разъёмом лучше проводить с отключенным аккумулятором. Там есть жёлто-чёрный и жёлто-красный провод при удачном воздействии на них приводит к сюрпризу в виде прилёта подушки руля в лицо.

Замыкание этих проводов активирует штатный сигнал автомобиля. Функция открытия багажника глубоко вшита в сигнализацию. Реализовать это на нашем автомобиле где замок багажника подключен параллельно четырем дверным практически невозможно, но если кто вдруг захочет сыграть в эту игру расскажите как вы собираетесь это реализовать при этом оставив работоспособной штатную систему с родного ключа. А так настроив на это реле функцию открытия багажника можно зажав на одну секунду кнопку брелока пикнуть сигналом автомобиля разгоняя удалённо котиков с капота.
Переходим к панели приборов, там два разъёма

тут все просто


Разъём кнопки аварийной сигнализации

И последний бросок.
Через резиновый уплотнитель за бардачком из салона в моторный отсек пихаем датчик температуры от блока сигнализации, проводок к концевику капота ( INP3 ), сирена по желанию и проводок (INP1) к датчику нейтрали КПП (речь идет о механической коробке передач).
Датчик нейтрали — имеет два состояния. В первом — включена нейтралка. Во втором — включена любая передача и даже если задняя.
В автомобиле на основе сигнала этого датчика реализована работа системы курсовой устойчивости. На нейтральной передаче или с выжатым сцеплением, там тоже есть датчик, система курсовой устойчивости не будет использовать себе в помощь управление оборотами двигателя мимо вашего желания (даже если кратко то это тема для отдельной статьи).
В нашем случае сигнал с этого датчика обеспечит уверенность блоку сигнализации задействовать без последствий автозапуск, а вам не придется ловить убежавший автомобиль. Находиться волшебный проводок в разъёме блока PCM рядом с аккумулятором. Кому будет интересно подлючите к нему вольтметр включите зажигание и переключая передачи можно пронаблюдать логику работы. Самое интересное что состояние этого датчика можно вытянуть с CAN шины, forscan умеет, а alarmtrade всё ещё нет.

Проложить упомянутые провода легче если использовать в качестве несущего элемента тросик дроссельной заслонки. (фотки нет)
И схема сигнализации

Краткое содержание предыдущего текста с проходом по схеме сигнализации:
IMMO-KEY2 _ _ _ _ к панели приборов
IMMO-KEY1 _ _ _ _ к панели приборов
CH9 _ _ _ _ BCM припаянный провод 1 к реле
CH6 _ _ _ _ BCM припаянный провод 2 к реле
CH10 _ _ _ _ R5 RMD-5M Стартер
CH7 _ _ _ _ R4 RMD-5M ACC
CH8 _ _ _ _ R3 RMD-5M Зажигание
Тахометр _ _ _ _ удалить, у нас обороты двигателя считываются по CAN
CH5 _ _ _ _ R2 RMD-5M сигнал
CAN1-H _ _ _ _ к панели приборов
CAN2-H _ _ _ _ удалить, не для нас это счастье
CH1/INP1 _ _ _ _ датчик нейтрали (блок PCM)
CH4/INP4 _ _ _ _ кнопка аварийки
INP5 _ _ _ _ к панели приборов (датчик уровня топлива)
LIN _ _ _ _ удалить, а было бы прикольно, но нет.
INP3 _ _ _ _ концевик капота
CAN1-L _ _ _ _ к панели приборов
CAN2-L _ _ _ _ удалить
CH3 _ _ _ _ R1 RMD-5M блокировка стартера
INP2 _ _ _ _ к панели приборов, оказалось важный проводок, здесь должен появляться + при любом способе включения зажигания иначе блок сигнализации перестаёт адекватно считыват данные с CAN (обороты двигателя), а ещё без него после автозапуска отваливается радиоканал сигналки (это ваще мегажопа).
С разъёма RMD-5M извлечь два контакта и перенести их в соседний к выводам CH3, CH5 и соответственно освободившиеся проводники от этих контактов перенести в разъем RMD-5M эти провода пойдут к блоку BCM.

чтобы извлечь контакты из разъёма достаточно нажать на на язычок и вытянуть затем подправив язычок лезвием ножа установить в корпус разъема.

… теперь у нас всё подключено, но ничего не работает.
AlarmStudio

без этого никак и до окончания процедуры клонирования ключа нужен доступ в интернет

кнопка Valet
режим программирования
AlarmStudio > выбор автомобиля > и как не странно Mazda3 (BL) > 2418 > сохранить.

Расширенные настройки > автозапуск > 2.3 обходчик штатного иммобилайзера > 2.3.3 вариант бесключевого обхода > Ford 40 bit. и дискетка вверху сохранить

И далее по книжке из комплекта (в моём случае страница 60):
Уровень 17 – Программирование бесключевого обхода штатного иммобилайзера
На данном уровне производится обучение алгоритмического обходчика штатного иммобилайзера.
Для программирования бесключевого обхода штатного иммобилайзера после входа в меню программирования
нажмите кнопку «VALET» семнадцать раз. При переходе на уровень, светодиод загорится зеленым цветом. После включения зажигания, если все правильно подключено, светодиод начнет мерцать зеленым цветом. При завершении процедуры сирена с базового
блока выдаст короткий звуковой сигнал, а статусный индикатор LED начнёт светиться зелёным
свечением. При не корректно выполненной процедуре сирена выдаст четыре звуковых сигнала,
а статусный индикатор LED начнёт светиться красным свечением.
Сохранение функции:
Для сохранения данных необходимо выключить зажигание и нажать кнопку «VALET» один
раз, после нажатия кнопки система перейдёт в начало меню программирования.
Alarm Studio после успешной процедуры считывания ключа осторожно спросит: Можно ли сходить в интернет посоветоваться с сервером? Выбор очевиден надо разрешить.
далее сообщить системе что у нас Mazda5 иначе сигналка не будет знать о состоянии положения дверей и багажника при этом обходчик иммобилайзера останется работоспособным, а AlarmStudio будет нас уверять в отсутствии бесключевого запуска.
AlarmStudio > выбор автомобиля > Mazda5 II (CR) > подтвердить > сохранить
Расширенные настройки
раздел три
входы и выходы
настройка входов ( три крестика! )

настройка выходов (много крестиков)

Открытие ЦЗ и Закрытие ЦЗ если не угадали крестики поменять местами
в разделе 2 автозапуск

тип трансмиссии — АКПП мы же подключили датчик нейтрали (для самоуспокоения протестируйте автозапуск сидя на водительском месте и держа наготове левую ногу). В режиме автозапуска с запущенным двигателем любая попытка включить передачу без ключа в замке зажигания приведёт к остановке двигателя.
и проверить параметр обходчик штатного иммобилайзера Ford 40 Bit
Теперь всё кое-как как будет работать настроек много чтобы не углубляться вот мои
В подарок функция Если система под охраной при приближении к автомобилю на 5-10 м включается аварийка "Здаствуй хазяина", естественно в кармане должна быть радио метка или подруженный с системой мобильный девайс (Меню программирования, доступное при помощи кнопки VALET Уровень 18).
Кнопка брелока F III
нажатие 1 сек — машина пикнет штатным сигналом
нажатие 2 сек — вкл/выкл магнитофона
Только не забудьте в AlarmStudio в разделе GSM прописать свой номер телефона
зарегистрироваться в сервисе pro.p-on.ru
и в комплекте сигнализации есть радио реле его можно прикрутить для блокировки запуска двигателя, но это уже без меня. Тут есть интересная идея с датчиком коленвала и резистором
Вылез один глюк:
Если заглушить автомобиль с включенным кондиционером, а потом запустить двигатель автозапуском будет в пол силы работать вентилятор радиатора охлаждения (он у нас один для радиатора охлаждения и для конденсатора кондиционера). Компрессор кондиционера и всё остальное из той системы будет отключено до момента поворота ключа в замке зажигания. Всё дело в блоке PCM который и управляет вентилятором. Он запоминает последний статус блока кондиционера (три кружочка под магнитофоном), а при включении автозапуска он обесточен и некому сообщить блоку PCM что вентилятором крутить не надо. А вот если заглушить автомобиль в тот момент когда блок управления кондиционером отослал команду что вентилятор ему не нужен (так обычно бывает зимой), то при автозапуске соответственно вентилятор крутится не будет до тех пор пока он не понадобится для охлаждения двигателя.
Выход из ситуации — забить. Может у кого есть другая Mazda с автозапуском отпишитесь потому как есть большие подозрения о семейной болезни.
И поскольку проводок INP5 мы подключили вот к нему инструкция Pandora_toplivo_analog_manual_20170915.pdf
ну так вкратце вроде всё





Комментарии 1
Красава, спасибо. Не понимаю почему отсутствуют комменты- видать для большинства людей описанное слишком сложно? и они готовы озолачивать криворуких и необразованных сервисменов из ПТУ кройки и шитья))
Есть пару вопросов, задам их когда разберу и сигналка будет в руках.
По мне так- за такой софт как у пандоры- можно и переплатить! Хотя, как мне нужен лишь автозапуск и больше ничего- много лишнего.
Вот думаю- вся морока тут с обходом иболайзера, обманка и так далее. а остальное лишь приёмопередатчик…
И сразу мысль- использовать нечто более простое, а ключ тупо спрятать в самой машине…